立即预约 立即预约
免费定制整装家居

免费定制整装家居

一站置家 全程无忧 一省到底
hide.png

当前位置: 首页 > 装修案例效果图 > 万达公园ONE|现代风格

万达公园ONE|现代风格 130平 现代简约风格效果图

收藏
案例风格 现代简约 案例户型 三居 案例面积 130平米
楼盘名称 万达公园ONE 设计师 菅垚 案例类型 改善性住宅

设计理念:设计理念:本案为现代极简风格设计

客厅 (2).jpg 客厅 (1).jpg 客厅 (3).jpg 客厅 (4).jpg

客餐厅空间:以“极简”为核心,达到“简约而不简单”的效果,是设计师用简单到极致的手法将设计融入生活,用简单的材料达到所需功能,是纯粹美感的提现。

餐厅 (1).jpg 餐厅 (2).jpg 餐厅.jpg 卫生间 (2).jpg 卫生间.jpg

卫生间:客卫用墙面白色地砖上墙,黑色地砖提升了质感,凸显现代时尚感。还设计了干湿分离,让空间发挥出最大的作用,

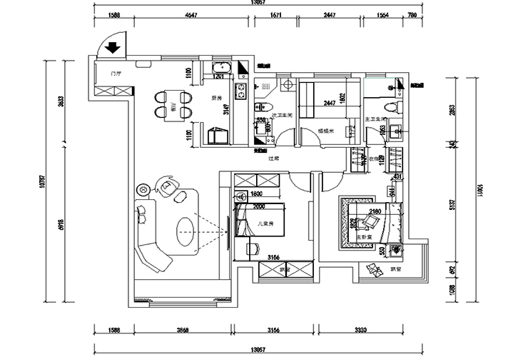
平面图.jpg

案例设计师

菅垚

设计师:菅垚

从业时间:11年

设计理念:没有最好的方案,只有最适合的方案

预约设计师

算算你家装修多少钱

报名即享丰厚赠品,品质装修

免费报价
咨询热线:400-656-9909
20190221103704574636.jpg

精品设计案例

20180612134930523248.jpg 服务号二维码.jpg