立即预约 立即预约
免费定制整装家居

免费定制整装家居

一站置家 全程无忧 一省到底
hide.png

当前位置: 首页 > 装修案例效果图 > 盛京花园|极简风格

盛京花园|极简风格 120平 现代简约风格效果图

收藏
案例风格 现代简约 案例户型 三居 案例面积 120平米
楼盘名称 盛京花园 设计师 沈阳林凤全案整装设计师 案例类型 改善性住宅

设计理念:设计说明:在装饰上,新中式风格善于运用传统元素。如书法、国画、瓷器等艺术品,既能展示中国传统文化的魅力,又能增添室内的艺术气息。此外,窗帘、地毯等软装也常采用传统图案或色彩,使整个空间更具文化底蕴。

客厅
第1张
第2张
卧室
第1张
第2张
第3张
卫生间
第1张
第2张
厨房
第1张
阳台
第1张
门厅
第1张
第2张
第3张
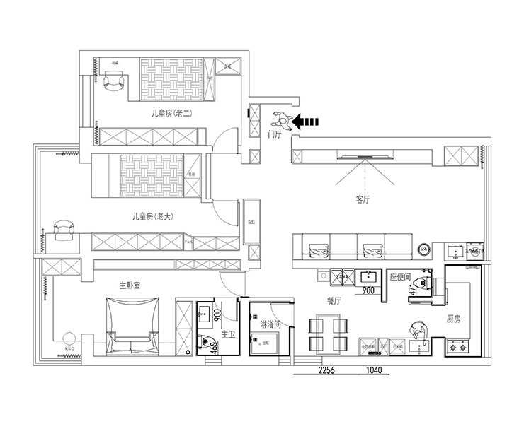
户型图
第1张
盛京花园-120-中式-客厅1.png 盛京花园-120-中式-客厅.png

客厅说明:色彩上,新中式风格多以中性色调为主,如米白灰色、木质色等,这些颜色既能营造出宁静的氛围,又能与各种家具和装饰品相协调。同时,也会适量运用红色、金色等传统色彩,以增强空间的层次感和文化底蕴。

盛京花园-120-中式-北客卧.png 盛京花园-120-中式-主卧室.png 盛京花园-120-中式-客卧室.png

卧室设计说明:新中式风格室内设计,是一种对传统的尊重与对现代的追求的完美结合。它不仅展现了东方的美学价值,也满足了现代人对生活品质的追求。

盛京花园-120-中式-主卫生间.png 盛京花园-120-中式-客卫生间.png

卫生间说明:卫生间用的暖色色砖设计,灰色定制浴室柜, 把整面墙浴室柜。

盛京花园-120-中式-厨房.png

厨房:对于厨房的设计敞开式,和用餐区互动。视觉开阔干很大。

盛京花园-120-中式-阳台.png 盛京花园-120-中式-门厅.png 盛京花园-120-中式-过廊.png 盛京花园-120-中式-正门厅.png 沈安小区-150-现代风格-平面图.jpg

案例设计师

沈阳林凤全案整装设计师

设计师:沈阳林凤全案整装设计师

从业时间:12年

设计理念:设计部分高低,也不是材料的堆砌和盲目的预算投入。而是在合理并有限的预算内,用最合适的材质,营造舒适的家居环境。

预约设计师

算算你家装修多少钱

报名即享丰厚赠品,享半价装修

免费报价
咨询热线:400-656-9909
20190221103704574636.jpg

精品设计案例

20180612134930523248.jpg 服务号二维码.jpg