立即预约 立即预约
免费定制整装家居

免费定制整装家居

一站置家 全程无忧 一省到底
hide.png

当前位置: 首页 > 装修案例效果图 > 阳光城翡丽府|现代简约

阳光城翡丽府|现代简约 314平 现代简约风格效果图

收藏
案例风格 现代简约 案例户型 别墅 案例面积 314平米
楼盘名称 阳光城翡丽府 设计师 罗霄 案例类型 儿童房

设计理念:设计理念:本案建筑面积314平米,根据业主需求设计了现代简约风格,整体黑白灰搭配,黑白灰整体空间体现高级感,再加入一些点缀色给人更加高端的感觉

阳光城翡丽府-314平米-现代简约风格-客厅2.jpg 阳光城翡丽府-314平米-现代简约风格-客厅.jpg 阳光城翡丽府-314平米-现代简约风格-客厅3.jpg

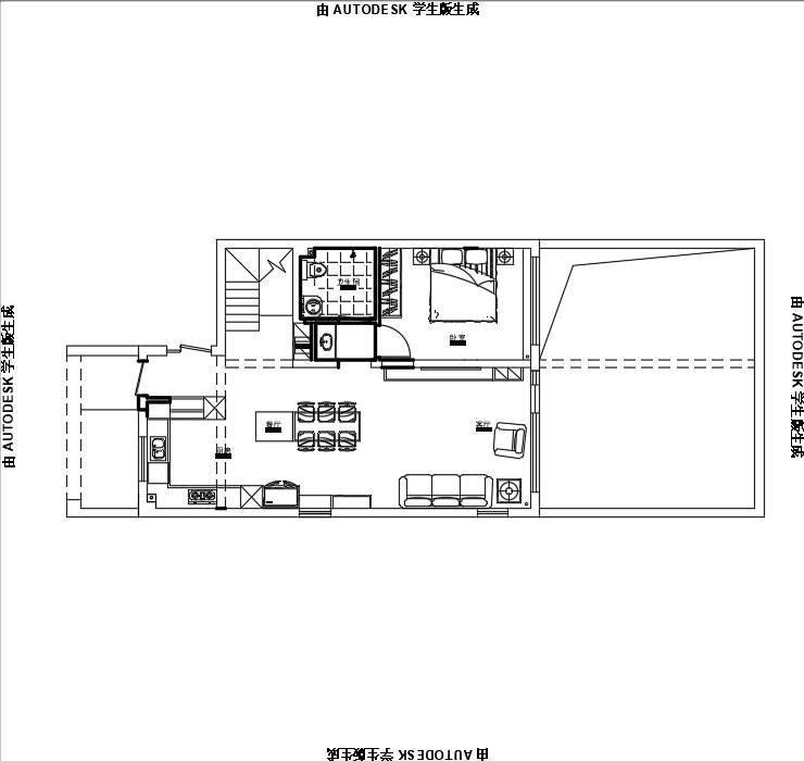
客厅说明:采用无主灯和筒灯互辅装饰,后面两侧黑色玻璃门柜,衬托出前面米色沙发,空间感十足,边几点缀,增加趣味,茶台设计品味高端,镂空搭配电视背景岩板墙,高端美感兼具

阳光城翡丽府-314平米-现代简约风格-儿童房.jpg 阳光城翡丽府-314平米-现代简约风格-主卧.jpg

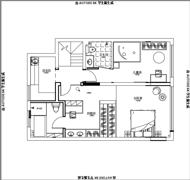
卧室说明:卧室整体也是黑白灰搭配,衣柜末端玻璃开放格展示,破开整体压抑感,床头柜搭配卧室背景墙给人感觉及其舒适

阳光城翡丽府-314平米-现代简约风格-次卫.jpg 阳光城翡丽府-314平米-现代简约风格-主卫.jpg

卫生间说明:卫生间的空间利用和格局分布舒适,嵌入浴盆体验感十足

阳光城翡丽府-314平米-现代简约风格-厨房1.jpg 阳光城翡丽府-314平米-现代简约风格-厨房1.jpg 阳光城翡丽府-314平米-现代简约风格-茶室.jpg 阳光城翡丽府-314平米-现代简约风格-健身房.jpg 阳光城翡丽府-314平米-现代简约风格-水吧.jpg 阳光城翡丽府-314平米-现代简约风格-庭院.jpg

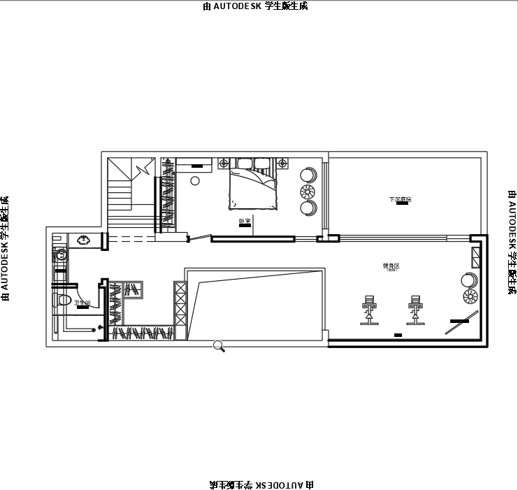
身区:高端的生活品质,也要有健康的身体,所以区域划分出一片健身区,摆放健身器材,吊式电视,可以更好跟随健身视频健身。

18d794fb67a131ce2f3f388b5b71f62.jpg 2759e25509e7a30dde3c4836bee47a3.jpg a14e266d2cdc981b790904a37e292b2.jpg a0846f2bbaafba306eb46699af26577.jpg

案例设计师

罗霄

设计师:罗霄

从业时间:17年

设计理念:唯有我的设计,方显你家的与众不同。

预约设计师

算算你家装修多少钱

报名即享丰厚赠品,品质装修

免费报价
咨询热线:400-656-9909
20190221103704574636.jpg

精品设计案例

20180612134930523248.jpg 服务号二维码.jpg