立即预约 立即预约
免费定制整装家居

免费定制整装家居

一站置家 全程无忧 一省到底
hide.png

当前位置: 首页 > 装修案例效果图 > 世茂国风盛京|新中式

世茂国风盛京|新中式 240平 新中式风格效果图

收藏
案例风格 新中式 案例户型 五居 案例面积 240平米
楼盘名称 世茂国风盛京 设计师 杨达 案例类型 改善性住宅

设计理念:设计师整体设计理念:本案以新中式风格为主,新中式风格是融合传统和现代元素的设计风格,将中国传统文化与生活相结合,以简洁,自然,舒适为设计理念。同时也注重细节处理,让每个空间充满温馨感。

客厅
第1张
第2张
第3张
第4张
第5张
第6张
卧室
第1张
第2张
第3张
卫生间
第1张
厨房
第1张
书房
第1张
休闲区
第1张
衣帽间
第1张
门厅
第1张
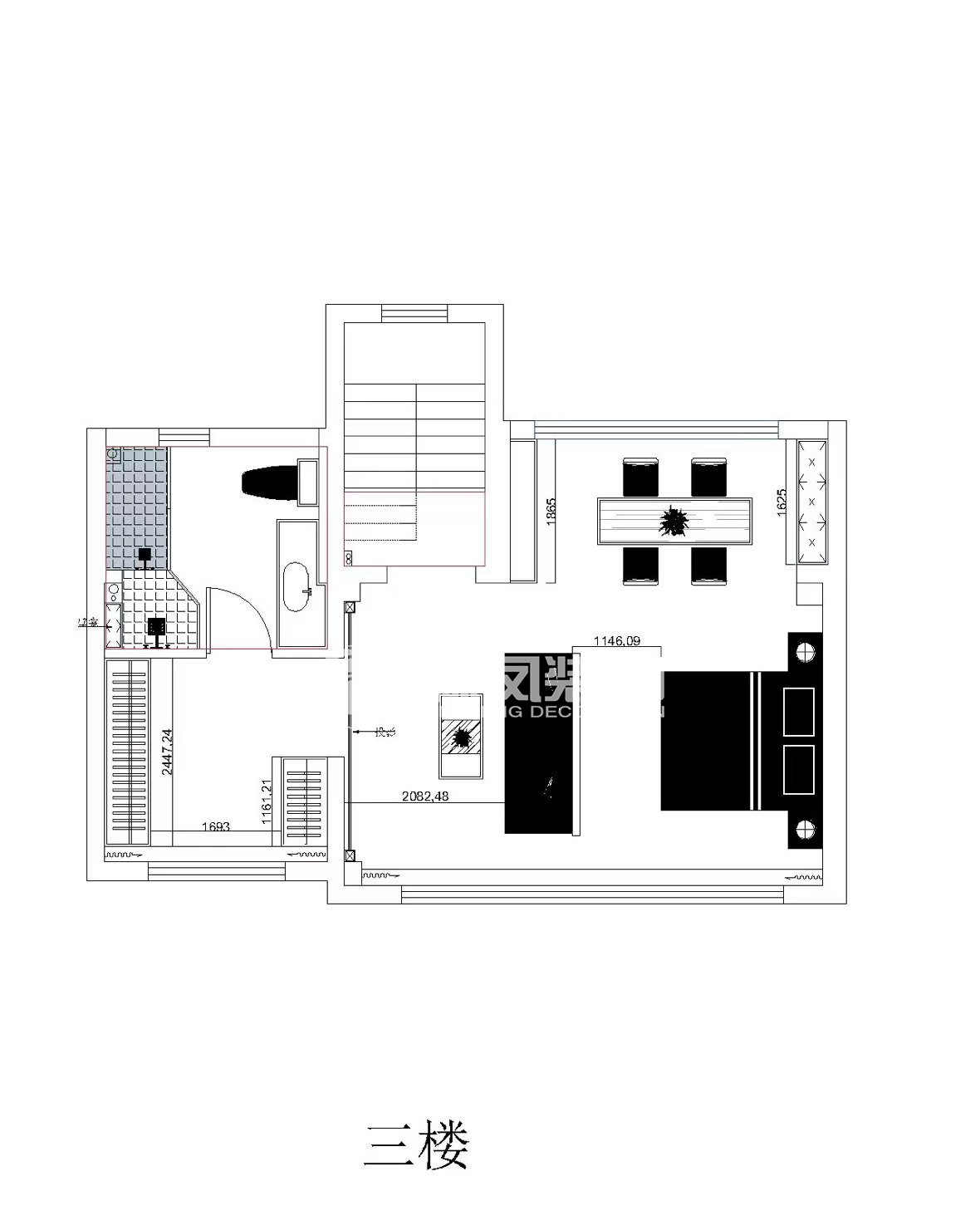
户型图
第1张
第2张
世茂国风盛京-240㎡-新中式-二楼客厅.jpg 世茂国风盛京-240㎡-新中式-电视背景墙.jpg 世茂国风盛京-240㎡-新中式-客厅2.jpg 世茂国风盛京-240㎡-新中式-客厅4.jpg 世茂国风盛京-240㎡-新中式-客厅3.jpg 世茂国风盛京-240㎡-新中式-客厅5.jpg

客厅说明: 新中式风格注重空间层次感,通过运用中式屏风作为隔绝视线的工具,还可以为客厅增添一些私密性。家具以木质为主,结合现代简约的线条,打造出独特的家居风格。

世茂国风盛京-240㎡-新中式-二楼卧室.jpg 世茂国风盛京-240㎡-新中式-主卧2.jpg 世茂国风盛京-240㎡-新中式-主卧3.jpg

卧室说明:主卧搭配L型衣帽间,使得空间在视觉上呈现更大。高品质的卧室带着低调高品质要求。

世茂国风盛京-240㎡-新中式-公共卫生间.jpg

卫生间说明:主卫生间整体采用瓷砖铺贴,将空间划分明确,相互使用不受影响,整体光源充足。

世茂国风盛京-240㎡-新中式-厨房.jpg

厨房说明:L型橱柜整体宽敞,布局合理,极大的放大空间,满足屋主的品质生活!

世茂国风盛京-240㎡-新中式-书房.jpg 世茂国风盛京-240㎡-新中式-茶室.jpg 世茂国风盛京-240㎡-新中式-主卧衣帽间.jpg 世茂国风盛京-240㎡-新中式-楼梯.jpg 世茂国风盛京-240㎡-新中式-平面布局图.jpg 世茂国风盛京-240㎡-新中式-三楼平面布局图.jpg

案例设计师

杨达

设计师:杨达

从业时间:10年

设计理念:精雕细琢,返璞归真。

预约设计师

算算你家装修多少钱

报名即享丰厚赠品,品质装修

免费报价
咨询热线:400-656-9909
20190221103704574636.jpg

精品设计案例

20180612134930523248.jpg 服务号二维码.jpg