立即预约 立即预约
免费定制整装家居

免费定制整装家居

一站置家 全程无忧 一省到底
hide.png

当前位置: 首页 > 装修案例效果图 > 华府帝景庄园|中式风格

华府帝景庄园|中式风格 300平 现代简约风格效果图

收藏
案例风格 现代简约 案例户型 三居 案例面积 300平米
楼盘名称 华府帝景庄园 设计师 全案整装 案例类型 改善性住宅

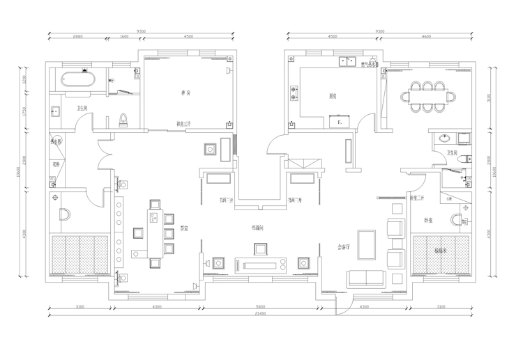
设计理念:设计师整体设计理念:经过前期和客户的沟通,把两户合并成一户,加大面积。留一户进户门。目前客户还没退居一线,所以家里还要具备办公功能。酷爱中式风格装修,喜欢读书,书法。所以在设计时加大了书房面积,并设置了独立茶室。

客厅
第1张
第2张
第3张
餐厅
第1张
卧室
第1张
第2张
卫生间
第1张
厨房
第1张
书房
第1张
休闲区
第1张
第2张
第3张
衣帽间
第1张
户型图
第1张
华府帝景庄园-300-中式-茶室背景.jpg 华府帝景庄园-300-中式-会客厅.jpg 华府帝景庄园-300-中式-首图沙发背景.jpg

客厅说明: 本案户型客厅主要用于会客之用,随时代发展,电视并不是每家必备物品。为彰显中式文化,并没有设置过多现代电器。运用木线上棚的做法,勾勒出典型中式符合。采用中式门做为场景分割,独立的同时又不失整体性。

华府帝景庄园-300-中式-餐厅.jpg

餐厅说明:本方案餐厅与厨房一壁之隔,既能方便上菜,也能远离油烟。同时又两扇大窗,随时可以观看窗外美景。

华府帝景庄园-300-中式-次卧2.jpg 华府帝景庄园-300-中式-客卧1.jpg

卧室说明:卧室是每天居家时间最长的区域,在具备了实用的前提下加入了一些装饰性墙画,让空间更具有灵动之感。榻榻米的运用更是让卧室的视觉空间近一步加大,使人感觉宽敞明亮,心情愉悦。

华府帝景庄园-300-中式-卫生间.jpg

卫生间说明:本方案的卫生间沿用了地砖上墙,浅色花纹的墙砖和地砖搭配在一起显得更加和谐,搭配中式浴室柜,让整体风格一体化。更加凸显中式之美。

华府帝景庄园-300-中式-厨房.jpg

厨房说明:厨房延用地砖上墙,显得大气,冰箱,蒸烤一体机置于厨房却不显得拥挤,u形橱柜与吊柜充分保证了空间的使用率,台面布置符合中国人习惯的“洗切炒”做饭流程。并加入了一些欧式古典元素,采用相同木色,使其与中式风格自然融合。

华府帝景庄园-300-中式-书吧.jpg 华府帝景庄园-300-中式-茶室.jpg 华府帝景庄园-300-中式-茶室1.jpg 华府帝景庄园-300-中式-茶室背景.jpg 华府帝景庄园-300-中式-衣帽间.jpg 华府帝景庄园-300-中式-平面图.jpg

案例设计师

全案整装

设计师:全案整装

从业时间:20年

设计理念:美而不虚,华而不俗,在有限的空间,创造无限的可能。

预约设计师

算算你家装修多少钱

报名即享丰厚赠品,享半价装修

免费报价
咨询热线:400-656-9909
20190221103704574636.jpg

精品设计案例

20180612134930523248.jpg 服务号二维码.jpg