立即预约 立即预约
免费定制整装家居

免费定制整装家居

一站置家 全程无忧 一省到底
hide.png

当前位置: 首页 > 装修案例效果图 > 保利白沙林语|现代极简

保利白沙林语|现代极简 135平 现代简约风格效果图

收藏
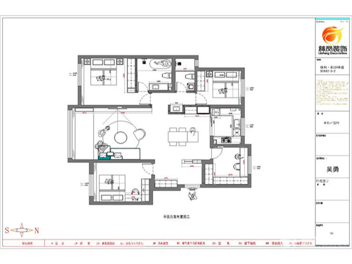
案例风格 现代简约 案例户型 三居 案例面积 135平米
楼盘名称 保利白沙林语 设计师 吴勇 案例类型 儿童房

设计理念:设计师整体设计理念:本设计方案整体以现代极简为主,创造一个和谐、舒适且功能齐全的居住空间,满足现代家庭的多样化需求,通过细致入微的设计手法,提升居住者的生活品质和幸福感,通过绿植自然光和天然材料的使用,营造出一个健康环保的生活环境。

保利白沙林语 135平 现代极简 客厅.jpg 保利白沙林语 135平 现代极简 客厅1.jpg 保利白沙林语 135平 现代极简 首图 .jpg

客厅说明:客厅空间较大,在门厅入户位置设立屏风,保护隐私,设置电视背景墙处展示柜搭配玻璃门,可以将收藏的藏品进行展示,搭配无主灯设计,简约大气,使客厅空间更加宽敞,采用开放式设计,连接餐厅,形成一个流畅的活动空间,选择简洁大方的家具,沙发和茶几组合凸显空间的宽敞感。

保利白沙林语 135平 现代极简 餐厅.jpg 保利白沙林语 135平 现代极简 餐厅1.jpg 保利白沙林语 135平 现代极简 餐厅2.jpg

餐厅说明:采用多层次的照明设计,包括主灯、射灯等,营造出温馨的氛围,通过简约的装饰品和桌布的选择,增强的餐厅的温馨感。

保利白沙林语 135平 现代极简 次卧1.jpg 保利白沙林语 135平 现代极简 次卧.jpg 保利白沙林语 135平 现代极简 儿童房.jpg 保利白沙林语 135平 现代极简 儿童房1.jpg

卧室说明:合理安排的储藏空间,确保卧室的整洁和有序,使用柔和的灯光,营造出一个宁静的睡眠环境,通过窗帘和床品的搭配,打造一个温馨且私密的空间。

保利白沙林语 135平 现代极简 主卫.jpg 保利白沙林语 135平 现代极简 主卫1.jpg

卫生间说明:注重干湿分离,提升使用的舒适性和卫生性,采用明亮的照明,确保卫生间的光线充足,通过简洁的装饰和色彩搭配,营造出一个清新洁净的环境。

保利白沙林语 135平 现代极简 厨房2.jpg 保利白沙林语 135平 现代极简 厨房1.jpg 保利白沙林语 135平 现代极简 厨房.jpg

厨房说明: 采用U型设计,最大化利用空间,提升工作效率,选用高品质的橱柜和台面,确保耐用和易于清洁,简洁大方,注重实用性,通过细节提升整体美观。

保利白沙林语 135平 现代极简 电竞房.jpg 保利白沙林语 135平 现代极简 电竞房1.jpg 保利白沙林语 135平 现代极简-平面图.jpg

案例设计师

吴勇

设计师:吴勇

从业时间:11年

设计理念:用抽象的思维去设计形象的事物

预约设计师

算算你家装修多少钱

报名即享丰厚赠品,品质装修

免费报价
咨询热线:400-656-9909
20190221103704574636.jpg

精品设计案例

20180612134930523248.jpg 服务号二维码.jpg