立即预约 立即预约
免费定制整装家居

免费定制整装家居

一站置家 全程无忧 一省到底
hide.png

当前位置: 首页 > 装修案例效果图 > 保利天汇|现代风格

保利天汇|现代风格 140平 现代简约风格效果图

收藏
案例风格 现代简约 案例户型 三居 案例面积 140平米
楼盘名称 保利天汇 设计师 李晶 案例类型 改善性住宅

设计理念:设计理念:本案例属于改善型学区房设计,85后夫妇有两个孩子(男孩)整体造型硬朗,简单,大气,主要为了孩子上学,整体风格现代风格为主,整体也需要打造学习氛围,平面格局每个卧室都需要书桌,保证独立空间都能学习,客厅整体互动性比较强,保留高举架,整体空间通透

客厅
第1张
卧室
第1张
第2张
第3张
卫生间
第1张
第2张
厨房
第1张
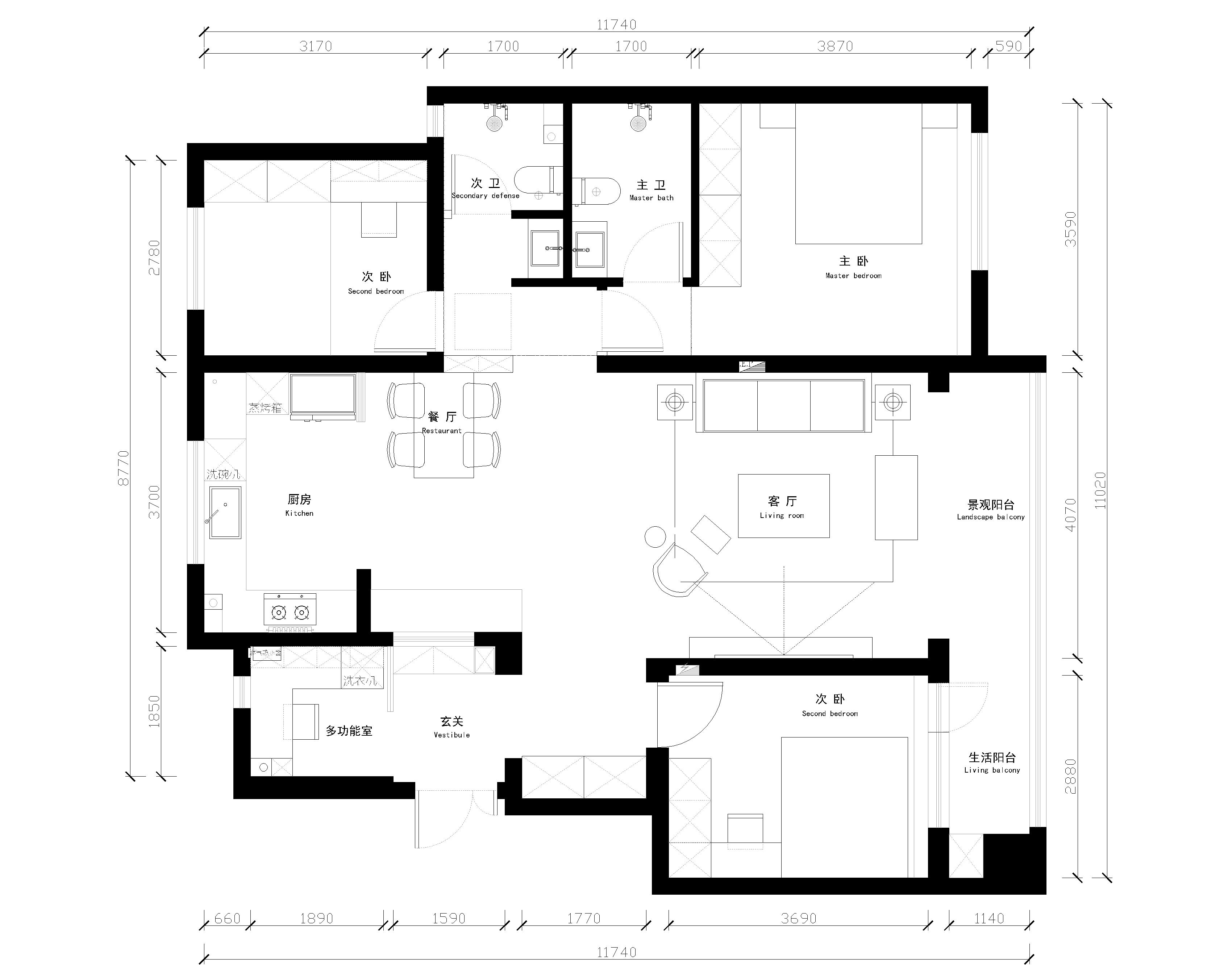
户型图
第1张
保利天汇140㎡ 现代风格 客餐厅.jpg

客厅说明:客厅属于真正的南北通透,利用户型优势,改造顺畅动线,顶楼保证高举架,晾晒区不在阳台,隐藏起来保证客厅的美观性和采光

保利天汇140㎡ 现代风格 北次卧.jpg 保利天汇140㎡ 现代风格 主卧.jpg 保利天汇140㎡ 现代风格 南次卧.jpg

卧室说明:所以卧室保留原始高举架,通透,主卧简洁大气、儿童房学习氛围强

保利天汇140㎡ 现代风格 客卫.jpg 保利天汇140㎡ 现代风格 主卫.jpg

卫生间说明:整体两卫并且干湿分离设计,保证上学上班“早高峰”用厕

保利天汇140㎡ 现代风格 厨房.jpg

厨房说明:客户经常下厨考虑封闭式厨房,满足洗切炒动线,餐厨动线流畅

保利天汇平面布置图.jpg

案例设计师

李晶

设计师:李晶

从业时间:8年

设计理念:以人为本,设计的是一种生活状态。

预约设计师

算算你家装修多少钱

报名即享丰厚赠品,享半价装修

免费报价
咨询热线:400-656-9909
20190221103704574636.jpg

精品设计案例

20180612134930523248.jpg 服务号二维码.jpg