立即预约 立即预约
免费定制整装家居

免费定制整装家居

一站置家 全程无忧 一省到底
hide.png

当前位置: 首页 > 装修案例效果图 > 巴塞罗那|奶油原木风格

巴塞罗那|奶油原木风格 98平 其他风格效果图

收藏
案例风格 其他 案例户型 三居 案例面积 98平米
楼盘名称 巴塞罗那 设计师 赵春阳 案例类型 改善性住宅

设计理念:设计理念:客户年轻小两口,刚去住房,喜欢温馨柔和的感觉,所以在室内空间中融入木色和奶油色调,带来一种温暖舒适的感觉。

客厅
第1张
第2张
第3张
餐厅
第1张
卧室
第1张
卫生间
第1张
厨房
第1张
第2张
书房
第1张
儿童房
第1张
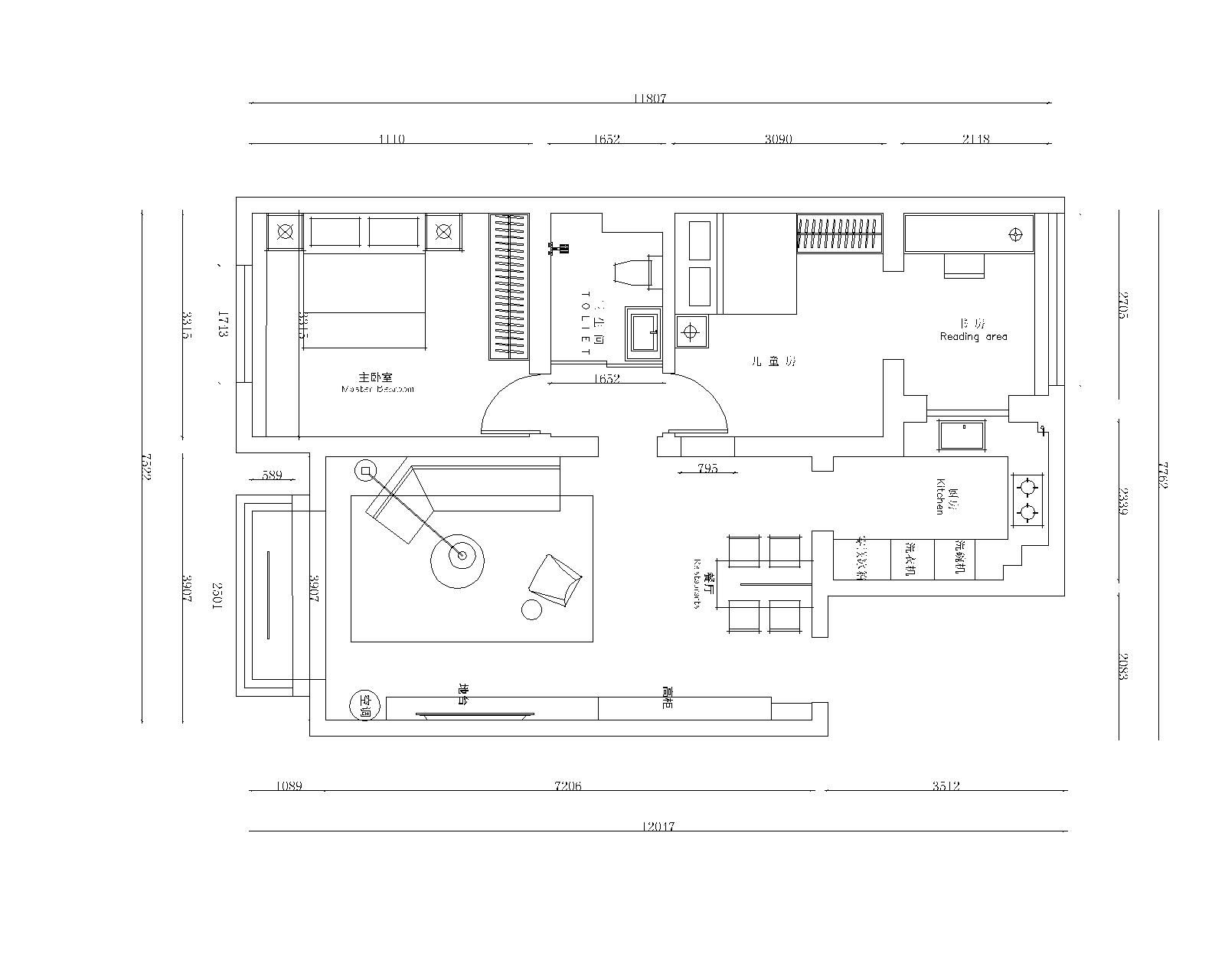
户型图
第1张
98平-巴塞罗那-奶油原木风-客厅.jpg 98平-巴塞罗那-奶油原木风-客厅 (2).jpg 98平-巴塞罗那-奶油原木风-客厅首页.jpg

客厅说明:客户想要多储物,重入户开始做了一整套储物柜加电视柜,整体由白色搭配木纹颜色,使整个空间更立体

98平-巴塞罗那-奶油原木风-餐厅.jpg 98平-巴塞罗那-奶油原木风-主卧.jpg

主室说明:主卧没有采取多余的造型,通过简单奶白温馨配色与木质表皮搭配出客户想要的温馨卧室感觉

98平-巴塞罗那-奶油原木风-卫生间.jpg

卫生间说明:采用推拉门设计,增加空间,采用大砖上墙,减少缝隙,更加大气美观

98平-巴塞罗那-奶油原木风-厨房 (2).jpg 98平-巴塞罗那-奶油原木风-厨房.jpg

厨房说明:采用奶油灰的配色,使整个厨房更加温馨明亮,客户特殊电器比较多,合理规划空间

98平-巴塞罗那-奶油原木风-书房.jpg 98平-巴塞罗那-奶油原木风-儿童房.jpg 户型图.jpg

案例设计师

赵春阳

设计师:赵春阳

从业时间:8年

设计理念:设计没有风格,设计是对生活的一种诠释。

预约设计师

算算你家装修多少钱

报名即享丰厚赠品,品质装修

免费报价
咨询热线:400-656-9909
20190221103704574636.jpg

精品设计案例

20180612134930523248.jpg 服务号二维码.jpg