立即预约 立即预约
免费定制整装家居

免费定制整装家居

一站置家 全程无忧 一省到底
hide.png

当前位置: 首页 > 装修案例效果图 > 摩尔公馆

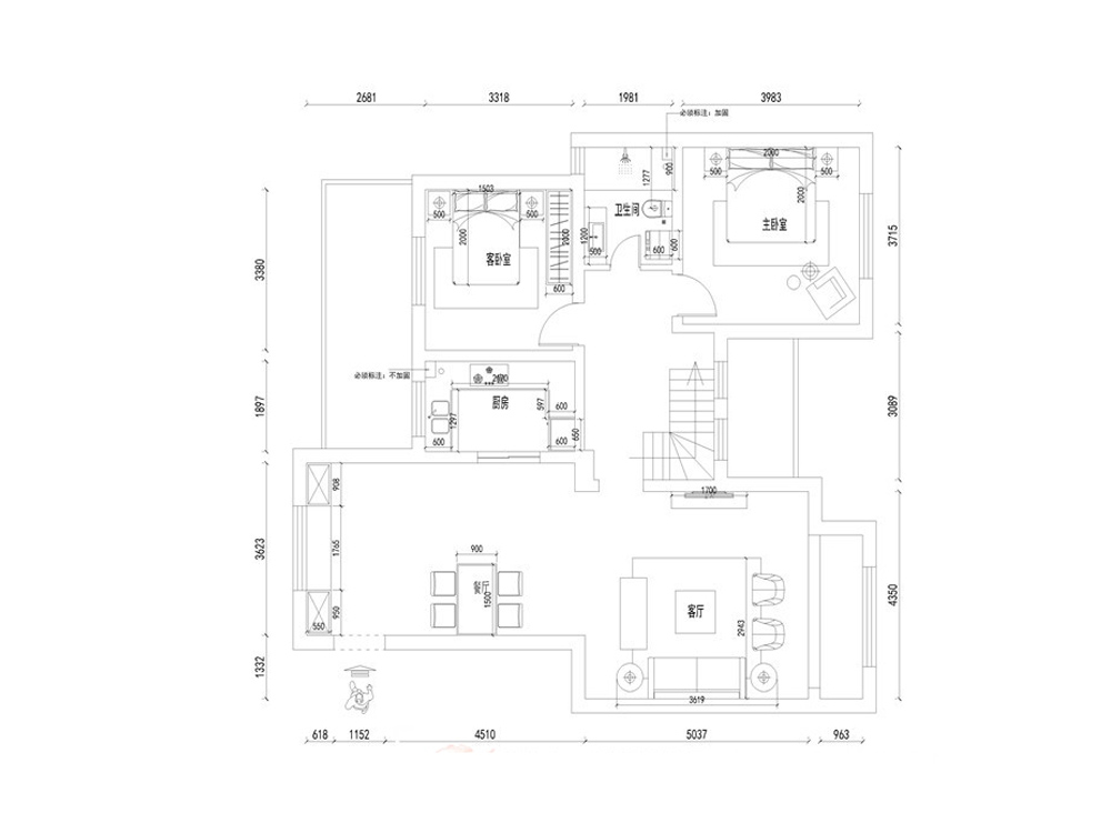
摩尔公馆 190平 现代简约风格效果图

收藏
案例风格 现代简约 案例户型 三居 案例面积 190平米
楼盘名称 摩尔公馆 设计师 林凤装饰设计师 案例类型 婚房

设计理念:整体方案以现代简洁风格为主,不需要复杂的造型,简单大方即可。

  • 案例详情

董陈君摩尔公馆-190平现代-客厅 (1).jpg 董陈君摩尔公馆-190平现代-客厅 (3).jpg 董陈君摩尔公馆-190平现代-客厅 (2).jpg 董陈君摩尔公馆-190平现代-客厅 (4).jpg 董陈君摩尔公馆-190平现代-客厅 (5).jpg

客厅的造型和吊顶都是围绕我们主体的设计风格和元素去做的,舍弃一切复杂和繁琐的造型和装饰,以石膏边棚做吊顶,让整个客厅更层次感,又不失明亮。

董陈君摩尔公馆-190平现代-餐厅 (2).jpg 董陈君摩尔公馆-190平现代-餐厅 (3).jpg 董陈君摩尔公馆-190平现代-餐厅 (1).jpg

餐厅的造型设计和玄关的整体造型是一体的,没有在做具体的分区,感觉那样做设计有点浪费我们原始格局的通透性和开放性。

董陈君东环瑞府-88平现代风格-平面.jpg 平面_.jpg

案例设计师

林凤装饰设计师

设计师:林凤装饰设计师

从业时间:8年

设计理念:因你喜欢,才有设计

预约设计师

算算你家装修多少钱

报名即享丰厚赠品,享半价装修

免费报价
咨询热线:400-656-9909
20190221103704574636.jpg

精品设计案例

20180612134930523248.jpg 服务号二维码.jpg