立即预约 立即预约
免费定制整装家居

免费定制整装家居

一站置家 全程无忧 一省到底
hide.png

当前位置: 首页 > 装修案例效果图 > 金地宸颂|现代奶油风

金地宸颂|现代奶油风 185平 现代简约风格效果图

收藏
案例风格 现代简约 案例户型 四居 案例面积 185平米
楼盘名称 金地宸颂 设计师 林凤设计师 案例类型 改善性住宅

设计理念:设计师整体设计理念:经过前期和客户的沟通,整体格局开阔,不会有压抑感,色彩搭配合理,简约奶油风不显得单调,在满足住户基本需求的同时,增加美感与时尚感

客厅
第1张
餐厅
第1张
卧室
第1张
第2张
第3张
卫生间
第1张
第2张
第3张
厨房
第1张
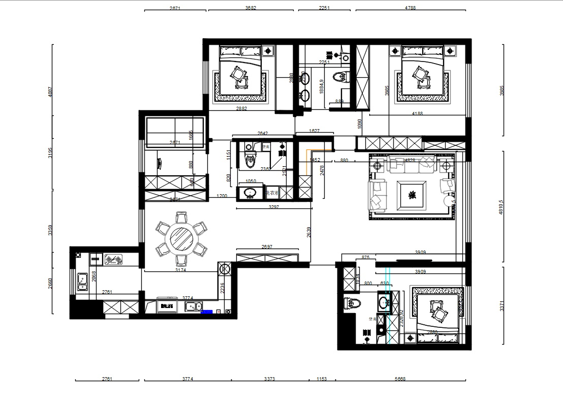
户型图
第1张
金地宸颂-185平-奶油风-客厅.jpg

客厅说明: 本案户型客厅主要是空间宽敞,电视背景墙采用定制一体,上面吊顶筒灯使得客厅更加温馨,吊灯造型独特,简洁同时彰显个性,L形沙发有足够的待客空间,艺术画与摆件使得房间更加灵活

金地宸颂-185平-奶油风-餐厅.jpg

餐厅说明:本方案餐厅位于厨房与客厅的交界处,既能方便上菜,也能看到客厅的窗户,视野开阔,垂钓灯直打餐桌,保障灯光同时用餐时的心情会更加愉悦

金地宸颂-185平-奶油风-次卧室.jpg 金地宸颂-185平-奶油风-主卧室 2.jpg 金地宸颂-185平-奶油风-主卧室.jpg

卧室说明:色彩的运用在装修手法上显得尤为重要,我们将奶油色和奶茶暖色作为主调,采用装饰挂件增加色彩,不显得单调,让人一进入就有愉悦放松的感觉

金地宸颂-185平-奶油风-次卫.jpg 金地宸颂-185平-奶油风-次卫2.jpg 金地宸颂-185平-奶油风-主卫.jpg

卫生间说明:本方案的卫生间沿用了地砖上墙,浅色花纹的墙砖和地砖搭配在一起显得更加和谐,玻璃浴屏分割出淋浴房,内部采用黑色花洒和置物台,使空间具有高级感

金地宸颂-185平-奶油风-厨房.jpg

厨房说明:厨房采用大块墙砖,显得大气,冰箱,蒸烤一体机置于西厨却显得大气,L形橱柜与吊柜充分保证了空间的使用率,台面布置符合中国人习惯的“洗切炒”做饭流程

金地宸颂-185平-奶油风-平面图.jpg

案例设计师

林凤设计师

设计师:林凤设计师

从业时间:12年

设计理念:安静,舒心,健康,艺术与美。

预约设计师

算算你家装修多少钱

报名即享丰厚赠品,享半价装修

免费报价
咨询热线:400-656-9909
20190221103704574636.jpg

精品设计案例

20180612134930523248.jpg 服务号二维码.jpg