立即预约 立即预约
免费定制整装家居

免费定制整装家居

一站置家 全程无忧 一省到底
hide.png

当前位置: 首页 > 装修案例效果图 > 警官家园|现代风格

警官家园|现代风格 102平 现代简约风格效果图

收藏
案例风格 现代简约 案例户型 二居 案例面积 102平米
楼盘名称 警官家园 设计师 高鹏 案例类型 改善性住宅

设计理念:设计理念:追求空间有效利用最大化,相对独立和合理性。提高空间的利用率。设计手法上追求人与空间的和谐统一.

客厅
第1张
第2张
第3张
餐厅
第1张
卧室
第1张
第2张
卫生间
第1张
厨房
第1张
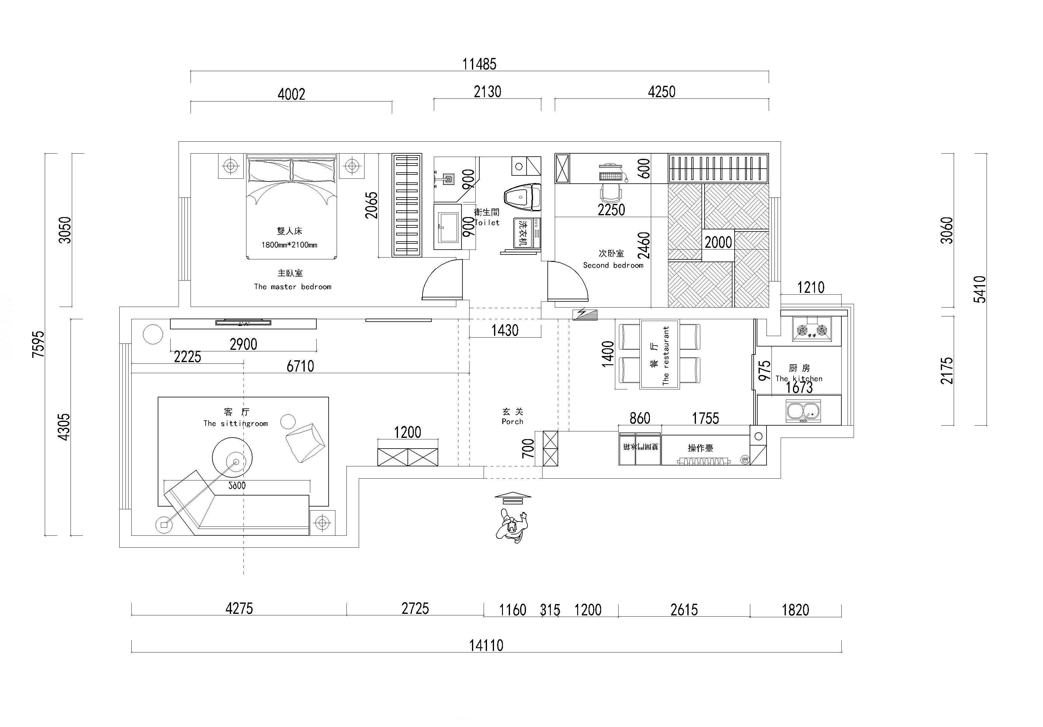
户型图
第1张
第2张
警官家园-102平-现代风格-客厅.jpg 警官家园-102平-现代风格-客厅1.jpg 警官家园-102平-现代风格-沙发.jpg

客厅说明: 房子主人喜欢简洁明亮的现代风格,沙发选择的是灰色一字沙发,搭配咖色懒人椅,点缀了空间。电视背景墙选择了嵌入式镶嵌电视,使得空间更有层次感。

警官家园-102平-现代风格-餐厅.jpg

餐厅说明:餐厅墙壁只挂了一幅造型壁画,享受慢节奏的生活,灰白色大理石材质的餐桌搭配理撞色餐椅,使餐厅空间更有质感。

警官家园-102平-现代风格-客卧室.jpg 警官家园-102平-现代风格-主卧室.jpg

主卧室说明:主卧室的床头背景采用环保的颜色乳胶漆搭配设计,是空间更有格调。

警官家园-102平-现代风格-卫生间.jpg

卫生间说明:卫生间采用米白基调的颜色,为客户做到了日常洗漱方便的生活需求,干湿分离的习俗格局,使卫生间的空间多元化,使得家居生活更便捷.

警官家园-102平-现代风格-厨房.jpg

厨房说明:厨房以灰色为主体基调,采用浅色砖及浅色纹理色墙砖进行搭配,橱柜搭配深色柜门,简单而又不失大气。

警官家园-102平-现代风格-户型图.jpg 警官家园-102平-现代风格-户型图1.jpg

案例设计师

高鹏

设计师:高鹏

从业时间:14年

设计理念:设计的核心是一种创造行为,设计要求新、求异、求变、求不同。

预约设计师

算算你家装修多少钱

报名即享丰厚赠品,品质装修

免费报价
咨询热线:400-656-9909
20190221103704574636.jpg

精品设计案例

20180612134930523248.jpg 服务号二维码.jpg