立即预约 立即预约
免费定制整装家居

免费定制整装家居

一站置家 全程无忧 一省到底
hide.png

当前位置: 首页 > 装修案例效果图 > 金地樾檀山|现代轻奢风格

金地樾檀山|现代轻奢风格 165平 轻奢风格效果图

收藏
案例风格 轻奢 案例户型 三居 案例面积 165平米
楼盘名称 金地樾檀山 设计师 白涵琦 案例类型 改善性住宅

设计理念:设计师整体设计理念:本案以轻奢的设计手法,遵循简约质感的原则深浅适应的木纹融入,使空间在和谐统一基础上更具视觉层次感。在二楼设计储物间解决了客户储存方面的困扰。

客厅
第1张
第2张
餐厅
第1张
第2张
卧室
第1张
第2张
第3张
卫生间
第1张
第2张
第3张
厨房
第1张
衣帽间
第1张
门厅
第1张
第2张
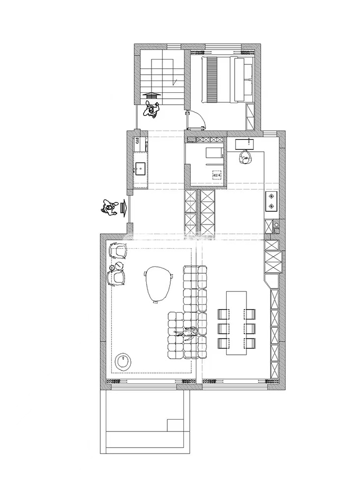
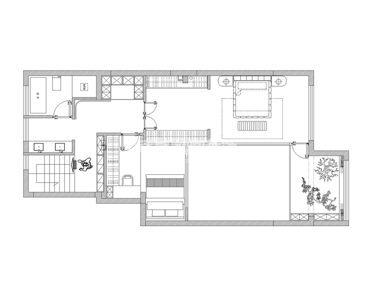
户型图
第1张
第2张
金地樾檀山-165平-现代轻奢风-客厅.jpg 金地樾檀山-165平-现代轻奢风-首图.jpg

客厅说明:融合内敛木色色块和金属的和谐统一,打造出高雅奢华的家居风格,营造出温暖,高级之感和温馨的氛围。

金地樾檀山-165平-现代轻奢风-客餐厅.jpg 金地樾檀山-165平-现代轻奢风客餐厅1.jpg 金地樾檀山-165平-现代轻奢风-儿童房.jpg 金地樾檀山-165平-现代轻奢风-儿童房1.jpg 金地樾檀山-165平-现代轻奢风-主卧.jpg

主卧说明:主卧内划分三个功能区,卧室、衣帽、卫生间,空间相对独立,即使与家人的生活习惯不同,也不会相互打扰。

金地樾檀山-165平-现代轻奢风-卫生间.jpg 金地樾檀山-165平-现代轻奢风-干区.jpg 金地樾檀山-165平-现代轻奢风-干区1.jpg

卫生间说明:通过简化装饰元素,使用线条和几何的交织,以及长方形的卧室柜和浴缸等,营造出现代感十足的空间氛围。

金地樾檀山-165平-现代轻奢风-厨房.jpg

厨房说明: 设计弧形墙使厨房动线更顺畅,厨房柜体采用黑玻设计,搭配简约的线条和豪华家具,营造出高贵,优雅的轻奢风格厨房。

金地樾檀山-165平-现代轻奢风-主卧衣帽间.jpg 金地樾檀山-165平-现代轻奢风-门厅.jpg 金地樾檀山-165平-现代轻奢风-门厅1.jpg 金地樾檀山-165平-现代轻奢风-平面布置图1.jpg 金地樾檀山-165平-现代轻奢风-平面布置图2.jpg

案例设计师

白涵琦

设计师:白涵琦

从业时间:10年

设计理念:设计实现客户家居梦想

预约设计师

算算你家装修多少钱

报名即享丰厚赠品,品质装修

免费报价
咨询热线:400-656-9909
20190221103704574636.jpg

精品设计案例

20180612134930523248.jpg 服务号二维码.jpg