立即预约 立即预约
免费定制整装家居

免费定制整装家居

一站置家 全程无忧 一省到底
hide.png

当前位置: 首页 > 装修案例效果图 > 一方上河府|现代风格

一方上河府|现代风格 112平 现代简约风格效果图

收藏
案例风格 现代简约 案例户型 三居 案例面积 112平米
楼盘名称 一方上河府 设计师 高鹏 案例类型 改善性住宅

设计理念:

客厅
第1张
餐厅
第1张
卧室
第1张
第2张
卫生间
第1张
厨房
第1张
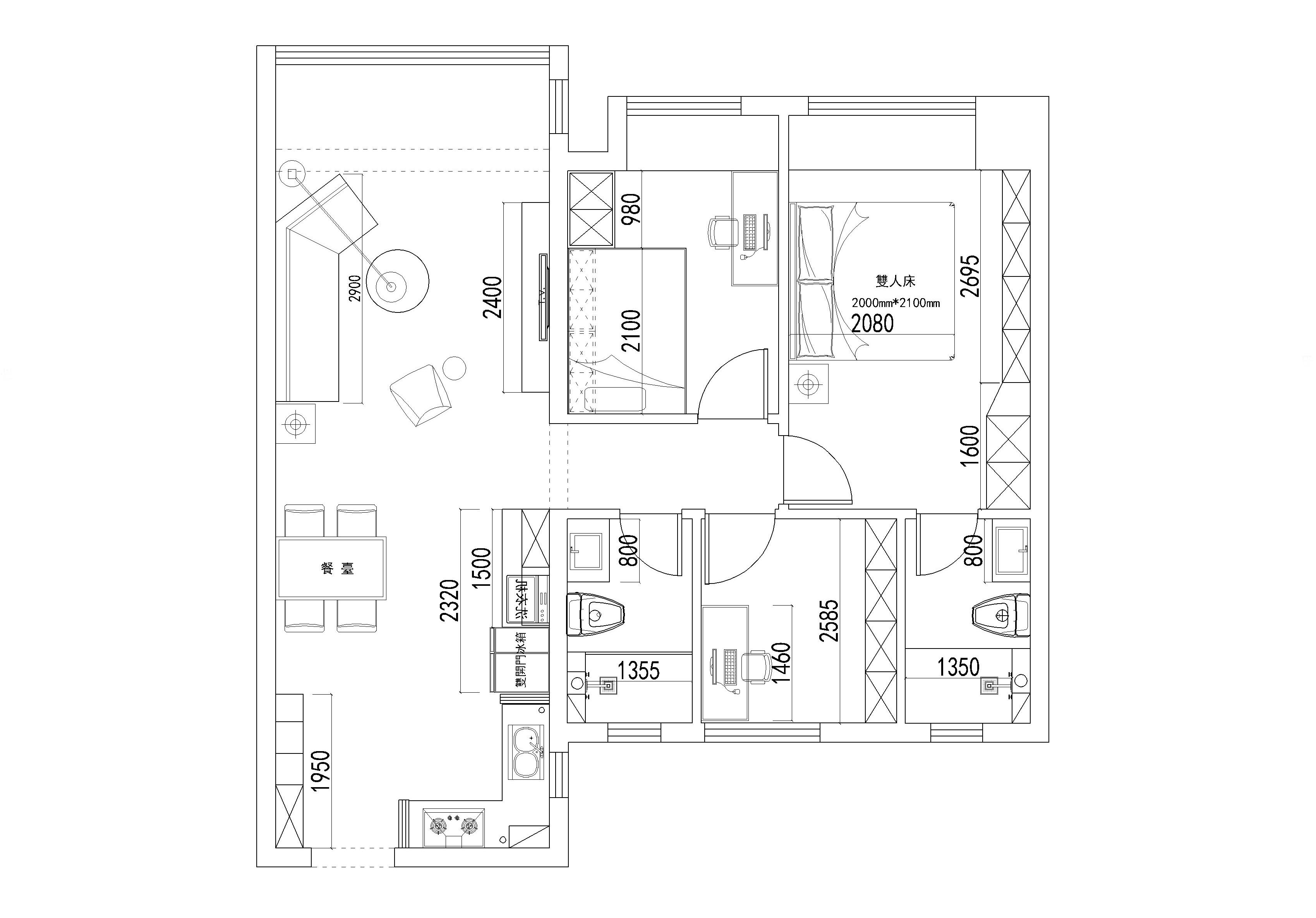
户型图
第1张
一方上河府-112平-现代风格-首图.jpg

客厅说明:客户喜欢干净简洁的舒适空间,客厅沙发喜欢暖灰色直排沙发,搭配舒适懒人椅,点缀了客厅空间。所以电视背景墙选择了简单的杏色乳胶漆来进行颜色材质的搭配,使空间更有温馨感。

一方上河府-112平-现代风格-餐厅.jpg

餐厅说明:餐厅部位墙壁只挂了简单装饰品,享受慢节奏的生活,低调而又不失内涵。白色岩板台面材质的餐桌搭配,充满仪式感的餐桌氛围扑面而来。

一方上河府-112平-现代风格-儿童房.jpg 一方上河府-112平-现代风格-主卧室.jpg 一方上河府-112平-现代风格-卫生间.jpg

卫生间说明:卫生间采用浅灰基调的颜色,为日常洗漱方便的生活需求,使卫生间的空间多元化,暖色的浴室柜与白色的洗漱台面更是搭配协调。

一方上河府-112平-现代风格-厨房.jpg

厨房说明: 厨房是开敞式以客餐厅一体,厨柜以浅灰色为主体基调,采用浅灰色砖及理石灰色墙砖进行搭配,简单而又不失大气。

一方上河府-112平-现代风格-平面图.jpg

案例设计师

高鹏

设计师:高鹏

从业时间:14年

设计理念:设计的核心是一种创造行为,设计要求新、求异、求变、求不同。

预约设计师

算算你家装修多少钱

报名即享丰厚赠品,品质装修

免费报价
咨询热线:400-656-9909
20190221103704574636.jpg

精品设计案例

20180612134930523248.jpg 服务号二维码.jpg