立即预约 立即预约
免费定制整装家居

免费定制整装家居

一站置家 全程无忧 一省到底
hide.png

当前位置: 首页 > 装修案例效果图 > 中瑞府|奶油简约风格

中瑞府|奶油简约风格 95平 其他风格效果图

收藏
案例风格 其他 案例户型 三居 案例面积 95平米
楼盘名称 中瑞府 设计师 王松 案例类型 改善性住宅

设计理念:设计师整体设计理念: 因生活而设计,因设计而完美。

客厅
第1张
餐厅
第1张
卧室
第1张
第2张
第3张
卫生间
第1张
厨房
第1张
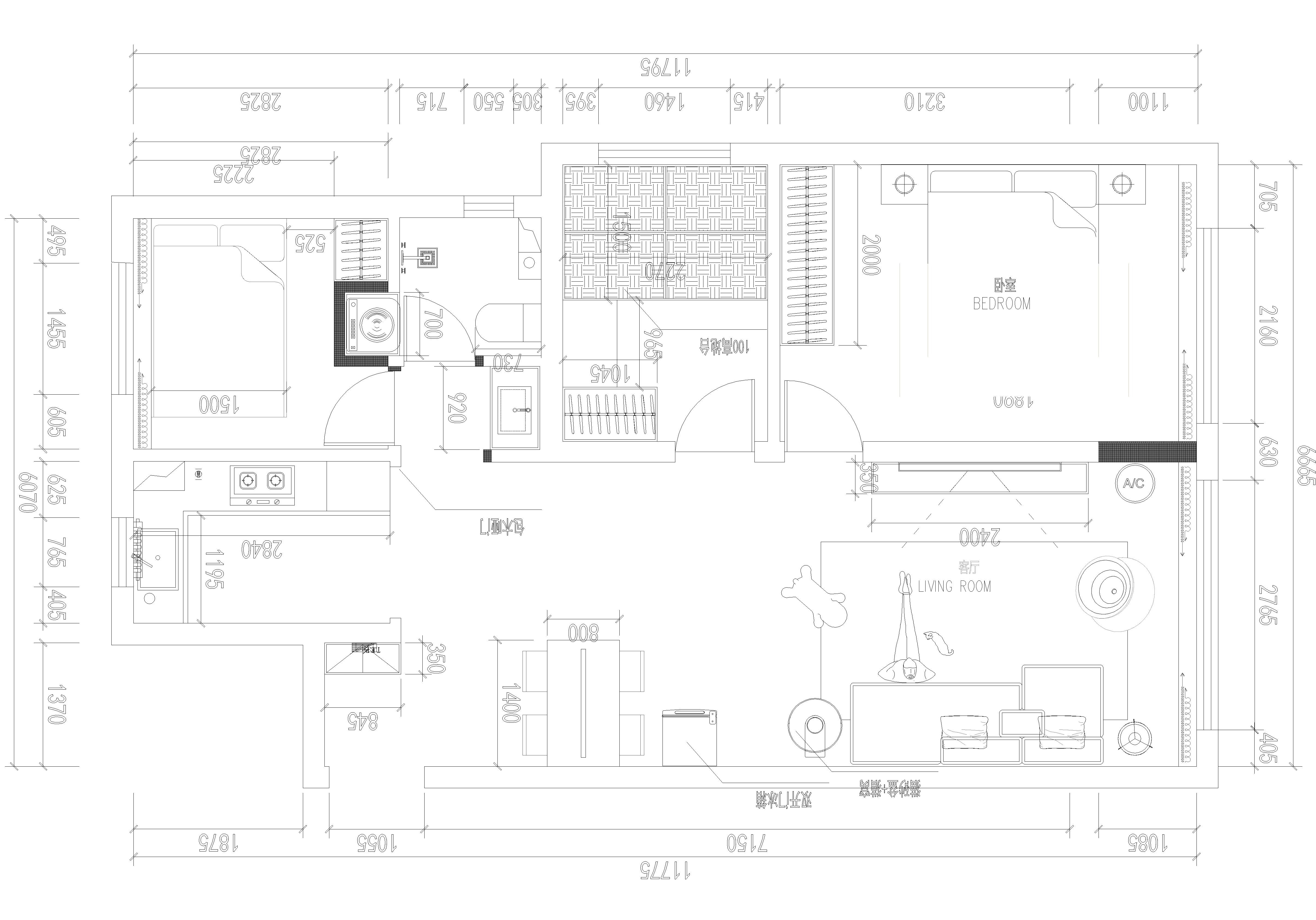
户型图
第1张
中瑞城-99平-奶油风格-首图.jpg

客厅说明: 客厅与入户有着略显尴尬的一线式格局,所以在布局上采用了餐桌与冰箱做以视线隔断。在硬装主体为简约时搭以奶油风的软装,即保证了简约的精致又柔和出了家的温馨感。

中瑞城-99平-奶油风格-餐厅.jpg 中瑞城-99平-奶油风格-北卧室.jpg 中瑞城-99平-奶油风格-主卧室.jpg 中瑞城-99平-奶油风格-客卧室.jpg

主卧室说明;主卧空间的主轴色依旧以明亮的暖色为主,床头也并没有做以花哨的背景墙,而是贯彻简约理念放置一幅奶油风主题的画,配以一株绿植点亮整个空间。

中瑞城-99平-奶油风格-卫生间.jpg

卫生间说明:卫生间整个空间的布局上略显局促,故而采用干湿分离,提高了屋主的生活效率的同时,还释放了湿区的空间压力。并且大胆的借用了旁边使用率以及面积并不优秀的次卧空间,锦上添花的在卫生间内更是置放了洗衣机。

中瑞城-99平-奶油风格-厨房.jpg 中瑞府6#1-11-1平面图.jpg

案例设计师

王松

设计师:王松

从业时间:10年

设计理念:品味生活,从家开始

预约设计师

算算你家装修多少钱

报名即享丰厚赠品,享半价装修

免费报价
咨询热线:400-656-9909
20190221103704574636.jpg

精品设计案例

20180612134930523248.jpg 服务号二维码.jpg