立即预约 立即预约
免费定制整装家居

免费定制整装家居

一站置家 全程无忧 一省到底
hide.png

当前位置: 首页 > 装修案例效果图 > 龙湖双珑原著|现代风格

龙湖双珑原著|现代风格 128平 现代简约风格效果图

收藏
案例风格 现代简约 案例户型 三居 案例面积 128平米
楼盘名称 设计师 慈英雪 案例类型 改善性住宅

设计理念:设计师整体设计理念: 设计师对于空间的动线与视线所到之处都有着细节统一的设计,在对景的配色处理上环环相扣,在材质选择上互相穿插,不同材质的融合,碰撞上有趣的色彩,寻找内心永恒的潮流。再现代设计手法的引领下,实现空间、色彩本质的回归。

客厅
第1张
第2张
餐厅
第1张
卧室
第1张
第2张
第3张
卫生间
第1张
第2张
第3张
第4张
厨房
第1张
衣帽间
第1张
过廊
第1张
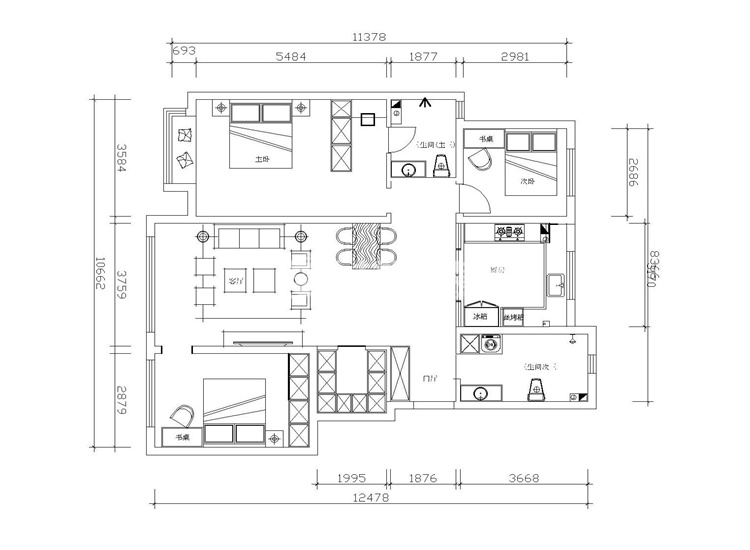
户型图
第1张
龙湖双珑原著-128平-现代风格09.jpg 龙湖双珑原著-128平-现代风格07.jpg

客厅说明: 客厅的设计布局可以大大影响空间的使用效率。针对空间大小和家庭成员的需求,可以合理布置沙发、电视、茶几、电器等物品,避免造成拥挤或空旷的情况。如果在空间中增加一些家具或装饰品,可以让空间更丰满,在一些重要的地方添加一些装饰品,装饰画、绿色植物、艺术品等来提高空间的品质感。把焦点放在房间中间,增加人们的视觉注意力,创造出更具吸引力的空间效果。

龙湖双珑原著-128平-现代风格08.jpg 龙湖双珑原著-128平-现代风格01.jpg 龙湖双珑原著-128平-现代风格12.jpg 龙湖双珑原著-128平-现代风格13.jpg

卧室说明: 主卧室不仅是睡眠、休息的地方,而且是最具私隐性的空间。因此,主卧室设计必须依据主人的年龄、性格、志趣爱好,考虑宁静稳重的或是浪漫舒适的情调,创造一个完全属于个人的温馨环境,整体空间非常大,步入式衣帽间增加整体收纳空间和隐私性,更好的遮挡了卫生间。

龙湖双珑原著-128平-现代风格03.jpg 龙湖双珑原著-128平-现代风格04.jpg 龙湖双珑原著-128平-现代风格11.jpg 龙湖双珑原著-128平-现代风格14.jpg

卫生间说明: 卫生间规划了动线,通过墙体改造增加了主卫的面积,打破传统干湿分离,所以在空间布局上讲究充分利用有限的空间,进行合理的布局,灰色系砖让整体效果更加现代化并且好打理

龙湖双珑原著-128平-现代风格05.jpg

厨房说明:厨房的设计不知以美观为设记原则,而要注重实际应用。在这里我选用的是u型,即将清洗、配膳与烹调三大工作为中心,依次配置于相互相连的L型墙壁空间,采用这样的布局,会使的烹饪过程井然有序,不会因中间某些过程而导致烹饪的混乱。使用此厨房的布局会觉得烹饪是如此简单,因为我已经将烹饪的流程安排在厨具的安排上。 将清洗台安放在窗户前面,让你在清洗时更加容易分辨,便于清洗,也让你在劳作时欣赏外面的自然景色,感受外面清新的空气,让你劳作的疲劳轻而易举的消除。

龙湖双珑原著-128平-现代风格02.jpg 龙湖双珑原著-128平-现代风格06.jpg

玄关说明:柜架式玄关就是柜体的组合,在柜架上设木质的格架作为装饰架,下部为柜体,或者以左右对称的形式设柜件,中部通透分明的形式,或以不规则形式,达到实用与美观的目的。

施工图01.jpg

案例设计师

慈英雪

设计师:慈英雪

从业时间:8年

设计理念:做有情感的设计,做符合生活方式的设计,无限优化生活空间

预约设计师

算算你家装修多少钱

报名即享丰厚赠品,品质装修

免费报价
咨询热线:400-656-9909
20190221103704574636.jpg

精品设计案例

20180612134930523248.jpg 服务号二维码.jpg