立即预约 立即预约
免费定制整装家居

免费定制整装家居

一站置家 全程无忧 一省到底
hide.png

当前位置: 首页 > 装修案例效果图 > 太湖龙附世家|现代简约

太湖龙附世家|现代简约 200平 现代简约风格效果图

收藏
案例风格 现代简约 案例户型 四居 案例面积 200平米
楼盘名称 太湖龙附世家 设计师 仲崇彤 案例类型 改善性住宅

设计理念:设计师整体设计理念: 整体思路考虑简单,容易打理,便于居住的前提下多考虑一些暖色调,不要太冷。

客厅
第1张
第2张
餐厅
第1张
第2张
第3张
卧室
第1张
第2张
卫生间
第1张
第2张
厨房
第1张
第2张
第3张
休闲区
第1张
衣帽间
第1张
第2张
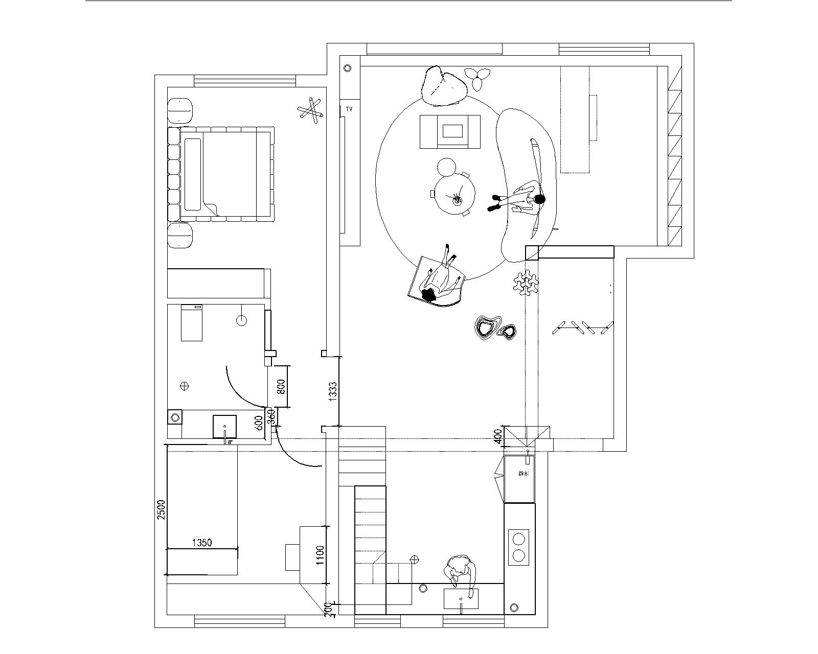
户型图
第1张
仲崇彤设计丨太湖龙府世家-客餐厅 0-20240413-164034.jpg 仲崇彤设计丨太湖龙府世家-客餐厅 18-20240413-164035.jpg

客厅说明: 主色调是第一,要简单温馨设计,现代风格体现线条统一。光线要温馨。工作一天了,回家要舒适一些。

仲崇彤设计丨太湖龙府世家-客餐厅 12-20240413-164035.jpg 仲崇彤设计丨太湖龙府世家-客餐厅 9-20240413-164034.jpg 仲崇彤设计丨太湖龙府世家-客餐厅 17-20240413-164035.jpg 仲崇彤设计丨太湖龙府世家-次卧 15-20240413-164035.jpg 仲崇彤设计丨太湖龙府世家-主卧 16-20240413-164035.jpg

卧室说明: 定制的颜色要与墙体有个反差,看着不要太近。温馨一些的就可以

仲崇彤设计丨太湖龙府世家-卫生间 13-20240413-164036.jpg 仲崇彤设计丨太湖龙府世家-卫生间 14-20240413-164035.jpg

卫生间:较小,功能性够用即可。唯一的要求是要定制的大手盆设计。

仲崇彤设计丨太湖龙府世家-客餐厅 10-20240413-164035.jpg 仲崇彤设计丨太湖龙府世家-客餐厅 11-20240413-164035.jpg 仲崇彤设计丨太湖龙府世家-客餐厅 12-20240413-164035.jpg

厨房说明:楼梯设计再厨房侧面。做的餐厨一体设计,考虑了楼梯下电器柜的设计效果。增加了很多储物空间

仲崇彤设计丨太湖龙府世家-佛龛 2-20240413-164034.jpg 仲崇彤设计丨太湖龙府世家-衣帽间 7-20240413-164035.jpg 仲崇彤设计丨太湖龙府世家-衣帽间 6-20240413-164035.jpg 7e764eed82983ccfd05b2ac7f3913a2.jpg

案例设计师

仲崇彤

设计师:仲崇彤

从业时间:15年

设计理念:设计就是着重于点、线、面的灵活运用,把整个环境营造出家的温馨。

预约设计师

算算你家装修多少钱

报名即享丰厚赠品,品质装修

免费报价
咨询热线:400-656-9909
20190221103704574636.jpg

精品设计案例

20180612134930523248.jpg 服务号二维码.jpg