立即预约 立即预约
免费定制整装家居

免费定制整装家居

一站置家 全程无忧 一省到底
hide.png

当前位置: 首页 > 装修案例效果图 > 华润御华府|现代简约

华润御华府|现代简约 140平 现代简约风格效果图

收藏
案例风格 现代简约 案例户型 四居 案例面积 140平米
楼盘名称 华润御华府 设计师 郑婷婷 案例类型 改善性住宅

设计理念:设计师整体设计理念:现代简约风格,追求空间的舒适和实用。

客厅
第1张
餐厅
第1张
第2张
卧室
第1张
第2张
第3张
卫生间
第1张
厨房
第1张
书房
第1张
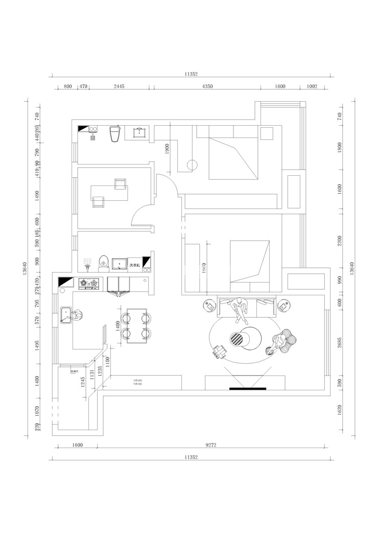
户型图
第1张
S5郑婷婷-万达公园ONE-130平-北欧风格-首图.jpg

客厅说明:户型南北通透,客餐厅贯穿一体。不需要装饰性灯光和造型。整体通铺柔光砖,色调温馨。多采用咖色系,中性色比较大气。

S5郑婷婷-万达公园ONE-130平-北欧风格-餐厅.jpg S5郑婷婷-万达公园ONE-130平-北欧风格-餐厅1.jpg

餐厅说明:餐厅用线条吊灯来做出层次感,就餐时,温馨浪漫。

S5郑婷婷-万达公园ONE-130平-北欧风格-次卧.jpg S5郑婷婷-万达公园ONE-130平-北欧风格-主卧.jpg S5郑婷婷-万达公园ONE-130平-北欧风格-主卧1.jpg

厨房说明:厨房用平面的柜门还做设计,方便于搭理

S5郑婷婷-万达公园ONE-130平-北欧风格-卫生间.jpg

卫生间说明:卫生间用600*1200的墙砖通铺,墙面地面一致,洗衣机上方置物架增加储物。

S5郑婷婷-万达公园ONE-130平-北欧风格-厨房.jpg

卧室说明:为了让卫生间的门不对着床,做了转角衣柜,增加收纳,又相当于隔断。

S5郑婷婷-万达公园ONE-130平-北欧风格-书房.jpg S5郑婷婷-万达公园ONE-130平-北欧风格-平面图.jpg

案例设计师

郑婷婷

设计师:郑婷婷

从业时间:9年

设计理念:用心与住宅对话,交织出住宅中的灵魂所属

预约设计师

算算你家装修多少钱

报名即享丰厚赠品,享半价装修

免费报价
咨询热线:400-656-9909
20190221103704574636.jpg

精品设计案例

20180612134930523248.jpg 服务号二维码.jpg