立即预约 立即预约
免费定制整装家居

免费定制整装家居

一站置家 全程无忧 一省到底
hide.png

当前位置: 首页 > 装修案例效果图 > 碧桂园太阳城|轻奢风格

碧桂园太阳城|轻奢风格 200平 轻奢风格效果图

收藏
案例风格 轻奢 案例户型 一居 案例面积 200平米
楼盘名称 碧桂园太阳城 设计师 菅垚 案例类型 改善性住宅

设计理念:设计理念:开放式的打通给人以通透之感,避免视觉给人带来压迫空间,可缓解业主工作一天的疲惫。没有夸张,不显浮华,通过干干净净的设计手法,将业主的工作空间巧妙地融入到生活空间中。

客厅
第1张
第2张
餐厅
第1张
卧室
第1张
卫生间
第1张
书房
第1张
休闲区
第1张
第2张
过廊
第1张
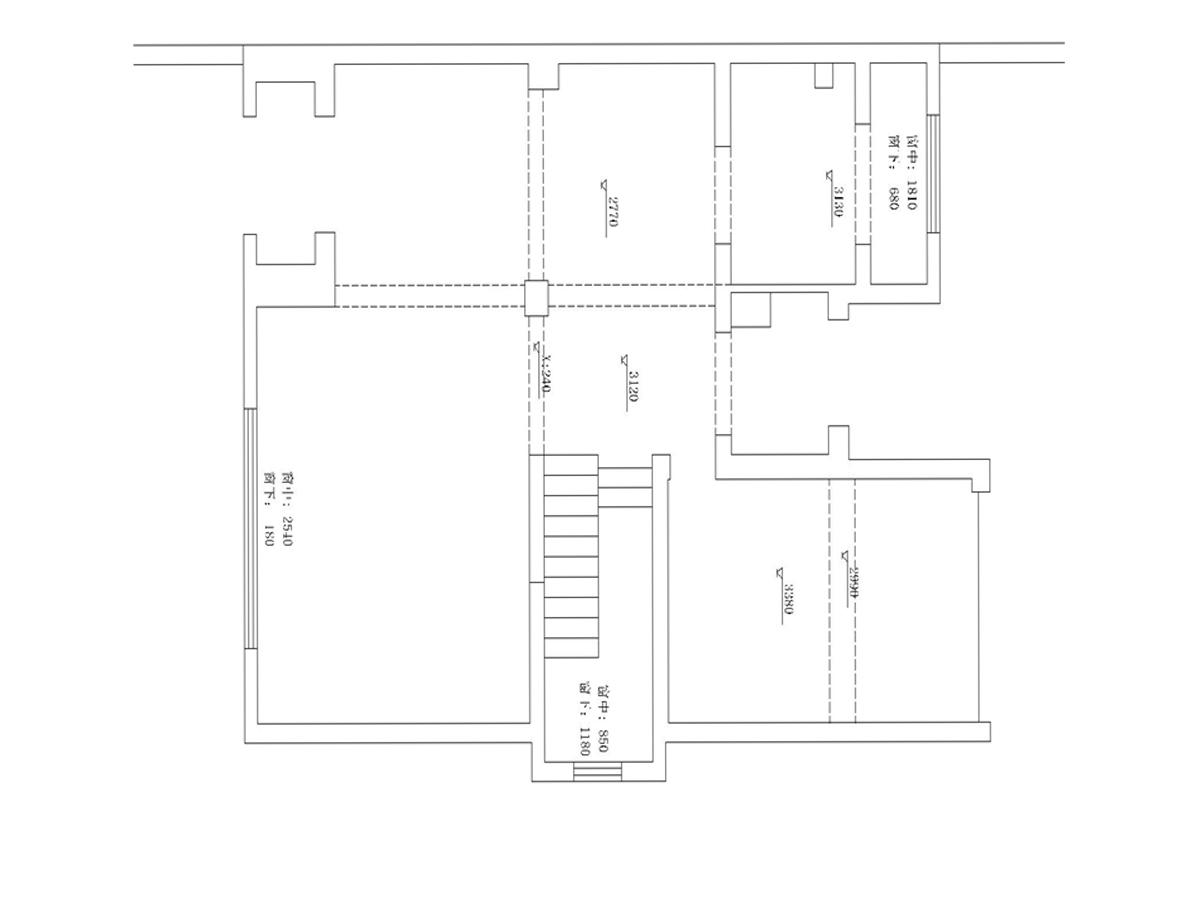
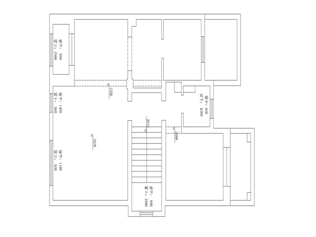
户型图
第1张
第2张
设计五部-菅垚-碧桂园太阳城-200平-轻奢风格-客厅.jpg 设计五部-菅垚-碧桂园太阳城-200平-轻奢风格-客厅..jpg

客厅说明:客厅大开间的设计风格,室内空间通透,但不显的发空,独特的设计风格,十分受业主喜爱.

设计五部-菅垚-碧桂园太阳城-200平-轻奢风格-餐厅.jpg 设计五部-菅垚-碧桂园太阳城-200平-轻奢风格-主卧.jpg

卧室说明:主卧采用L型的衣柜搭配,既可以形成独立的空间,又能化解风水上卫生间对门的冲突。

设计五部-菅垚-碧桂园太阳城-200平-轻奢风格-卫生间.jpg

卫生间说明:卫生间墙面铺设哑光砖瓷砖,铺贴使空间呈现高档大气效果,卫生容易打理,卫生间采用干湿分离的方法,功能分区明显,使用不冲突

设计五部-菅垚-碧桂园太阳城-200平-轻奢风格-棋牌室.jpg

多功能房:既能满足成年人的娱乐方式,也给孩子设计了学习才艺的空间

设计五部-菅垚-碧桂园太阳城-200平-轻奢风格-家政间.jpg 设计五部-菅垚-碧桂园太阳城-200平-轻奢风格-棋牌室.jpg 设计五部-菅垚-碧桂园太阳城-200平-轻奢风格-玄关.jpg 碧桂园太阳城..jpg 碧桂园太阳城.jpg

案例设计师

菅垚

设计师:菅垚

从业时间:11年

设计理念:没有最好的方案,只有最适合的方案

预约设计师

算算你家装修多少钱

报名即享丰厚赠品,享半价装修

免费报价
咨询热线:400-656-9909
20190221103704574636.jpg

精品设计案例

20180612134930523248.jpg 服务号二维码.jpg