立即预约 立即预约
免费定制整装家居

免费定制整装家居

一站置家 全程无忧 一省到底
hide.png

当前位置: 首页 > 装修案例效果图 > 万锦紫园

万锦紫园 160平 美式风格效果图

收藏
案例风格 美式 案例户型 五居 案例面积 160平米
楼盘名称 万锦紫园 设计师 林凤设计师 案例类型 改善性住宅

设计理念:如果用一句简练的话来述说这个设计,那就是简约、不花哨、不做作、不单调、不落伍、不张扬!并且有个性,美式风格怎么做出来个性?美式元素都是固定的,怎么样才能做到个性化?下面我们就慢慢研究下这个方案!

客厅
第1张
第2张
第3张
餐厅
第1张
第2张
卧室
第1张
卫生间
第1张
第2张
厨房
第1张
门厅
第1张
过廊
第1张
第2张
第3张
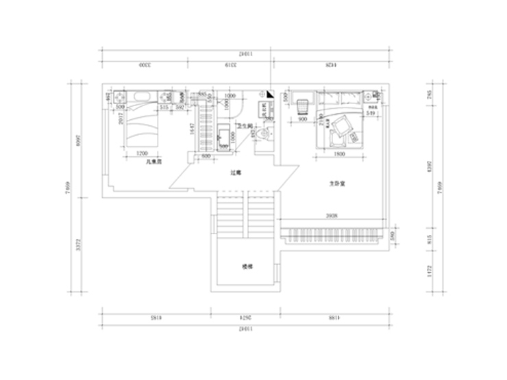
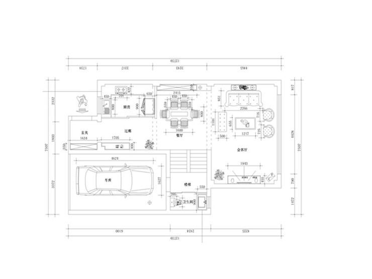
户型图
第1张
第2张
  • 案例详情

陈聪-美地庄园-160㎡-简约美式风格-客厅2.jpg 陈聪-美地庄园-160㎡-简约美式风格-客厅.jpg 陈聪-美地庄园-160㎡-简约美式风格-客厅1.jpg

客厅简约大方,整体色调干净简洁,不像其他美式风格都贴壁纸,明亮的色彩配合着时尚的现代感,搭配出更新颖的效果!墙体掏出三个摆台空间,让整体感觉不闷,特别的活络整体空间!

陈聪-美地庄园-160㎡-简约美式风格-餐厅2.jpg 陈聪-美地庄园-160㎡-简约美式风格-餐厅.jpg

棚顶与餐桌的呼应装饰是餐厅的表现重点,餐厅一样延续了简约的设计,只在旁边放了一个定做的酒柜,呼应我的整体色调,不做过多的装饰搭配!

陈聪-美地庄园-160㎡-简约美式风格-卧室.jpg

主卧室毕竟是主人长时间居住的环境,一定要做到舒适和达到一定审美观的视觉感,所以我在卧室下足了功夫,让业主爱上自己的卧室!

陈聪-美地庄园-160㎡-简约美式风格-卫生间1.jpg 陈聪-美地庄园-160㎡-简约美式风格-卫生间.jpg

卫生间的空间是要做到放松和自如的感觉,墙地砖选择米黄色系列的砖给人带来的是一种温馨,浴屏的独特设计分开了空间的干湿分离,浴缸的整体砌筑设计体现出了客户的高大上。

陈聪-美地庄园-160㎡-简约美式风格-厨房.jpg

在本套设计中,厨房的推拉门视觉上保证了空间的通透性,完全满足其使用功能担心油烟和操作对客厅的影响,所以我用了一扇玻璃推拉门隔断了厨房对外界的干扰。

陈聪-美地庄园-160㎡-简约美式风格-门厅.jpg 陈聪-美地庄园-160㎡-简约美式风格-过廊3.jpg 陈聪-美地庄园-160㎡-简约美式风格-过廊2.jpg 陈聪-美地庄园-160㎡-简约美式风格-过廊.jpg 陈聪-美地庄园-160㎡-简约美式风格-平面.jpg 陈聪-美地庄园-160㎡-简约美式风格-平面1.jpg

案例设计师

林凤设计师

设计师:林凤设计师

从业时间:9年

设计理念:细节是基础,专注是根本

预约设计师

算算你家装修多少钱

报名即享丰厚赠品,享半价装修

免费报价
咨询热线:400-656-9909
20190221103704574636.jpg

精品设计案例

20180612134930523248.jpg 服务号二维码.jpg