立即预约 立即预约
免费定制整装家居

免费定制整装家居

一站置家 全程无忧 一省到底
hide.png

当前位置: 首页 > 装修案例效果图 > 格林常青藤|现代奶油风

格林常青藤|现代奶油风 95平 其他风格效果图

收藏
案例风格 其他 案例户型 二居 案例面积 95平米
楼盘名称 格林常青藤 设计师 王松 案例类型 改善性住宅

设计理念:设计师整体设计理念: 因生活而设计,因设计而完美。

客厅
第1张
第2张
第3张
餐厅
第1张
第2张
卧室
第1张
第2张
卫生间
第1张
厨房
第1张
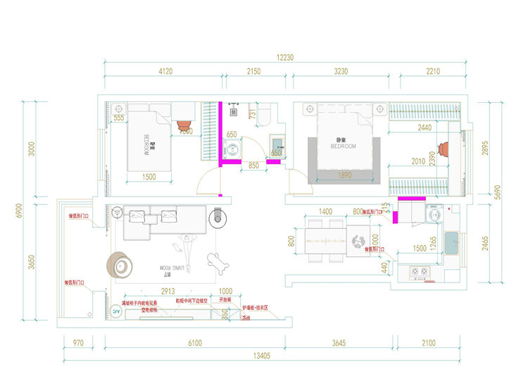
户型图
第1张
格林常青藤-95平-奶油风格-客厅.jpg 格林常青藤-95平-奶油风格-客厅 (2).jpg 格林常青藤-95平-奶油风格-首图.jpg

客厅说明: 客厅的设计亮点在于屋主要求的无主灯设计,并同时辅以从入户便开始的鞋柜与电视柜相结合的满墙柜体,以及开放式厨房加餐岛一体的餐厅。其中细节设计了入户端景与圆弧垭口,在满足了充满年轻活力的高颜值网红设计的同时兼顾奶白温馨的奶油风格空间。

格林常青藤-95平-奶油风格-餐厅 (2).jpg 格林常青藤-95平-奶油风格-餐厅.jpg 格林常青藤-95平-奶油风格-卧室.jpg 格林常青藤-95平-奶油风格-主卧室.jpg

卧室说明;主卧室采取了U型衣帽间的设计极大程度解决了年轻业主夫妻的大量衣物从而释放了储物空间的压力。在往后生活中也依旧可以保持刚入住时的整洁与美观。

格林常青藤-95平-奶油风格-卫生间.jpg

卫生间说明:主卫在墙地砖的选择上都是统一的奶白色柔光瓷砖,融合到整屋的奶油风格中。并且在卫浴产品的选择上推荐的均是简单大方的现代风格,在保持全屋风格的美观同时也不忘回归生活的实用主义。

格林常青藤-95平-奶油风格-厨房.jpg 格林·常青藤7-11#3-4-1平面图.jpg

案例设计师

王松

设计师:王松

从业时间:10年

设计理念:品味生活,从家开始

预约设计师

算算你家装修多少钱

报名即享丰厚赠品,享半价装修

免费报价
咨询热线:400-656-9909
20190221103704574636.jpg

精品设计案例

20180612134930523248.jpg 服务号二维码.jpg