立即预约 立即预约
免费定制整装家居

免费定制整装家居

一站置家 全程无忧 一省到底
hide.png

当前位置: 首页 > 装修案例效果图 > 浦江御景湾|现代奶油风

浦江御景湾|现代奶油风 150平 现代简约风格效果图

收藏
案例风格 现代简约 案例户型 三居 案例面积 150平米
楼盘名称 浦江御景湾 设计师 罗霄 案例类型 改善性住宅

设计理念:设计理念:本案建筑面积150平米,根据业主需求设计了现代奶油风格,整体采用低饱和度的色彩搭配,空间整体呈现出被细腻奶油包裹的氛围感

客厅
第1张
第2张
餐厅
第1张
第2张
第3张
卧室
第1张
第2张
第3张
卫生间
第1张
第2张
厨房
第1张
休闲区
第1张
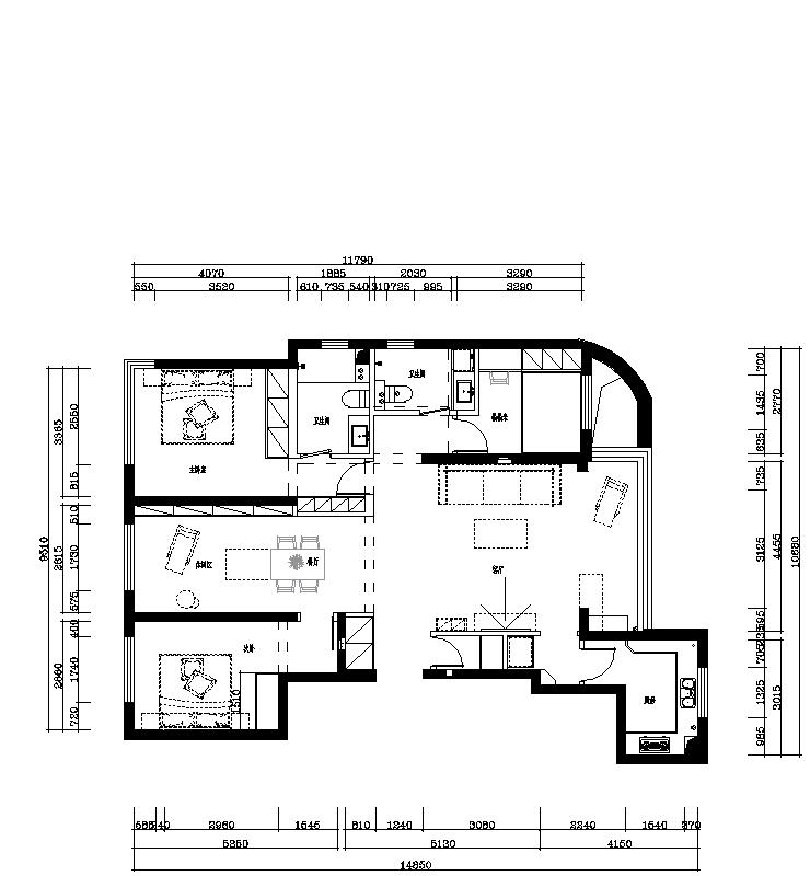
户型图
第1张
浦江.御景湾-150平-现代奶油风格-客餐厅5.jpg 浦江.御景湾-150平-现代奶油风格-客餐厅3.jpg

客厅说明:采用主灯和筒灯互辅装饰,茶几和沙发搭配不同颜色和形状,增加多变和趣味。

浦江.御景湾-150平-现代奶油风格-客餐厅9.jpg 浦江.御景湾-150平-现代奶油风格-客餐厅10.jpg 浦江.御景湾-150平-现代奶油风格-客餐厅11.jpg 浦江.御景湾-150平-现代奶油风格-次卧.jpg 浦江.御景湾-150平-现代奶油风格-主卧.jpg 浦江.御景湾-150平-现代奶油风格-榻榻米.jpg

卧室说明:用石膏线造型搭配定制衣柜和主灯对应地面烘托氛围感,超大定制衣柜拥有更多收纳空间

浦江.御景湾-150平-现代奶油风格-卫生间2.jpg 浦江.御景湾-150平-现代奶油风格-主卫3.jpg

卫生间说明:卫生间的干湿分离,瓷砖色系,及方便又高级

浦江.御景湾-150平-现代奶油风格厨房3.jpg

厨房说明:简单的定制装饰,色系搭配,理石和瓷砖的呼应,整体层次分明,上浅下重,尽显高级。

浦江.御景湾-150平-现代奶油风格-家政间.jpg

家政间:定制柜,超大隔阂,超大收纳空间,配合墙挂网节约空间又增加空间利用率。

浦江·御景湾-150平-现代奶油风布局图.jpg

案例设计师

罗霄

设计师:罗霄

从业时间:17年

设计理念:唯有我的设计,方显你家的与众不同。

预约设计师

算算你家装修多少钱

报名即享丰厚赠品,品质装修

免费报价
咨询热线:400-656-9909
20190221103704574636.jpg

精品设计案例

20180612134930523248.jpg 服务号二维码.jpg