立即预约 立即预约
免费定制整装家居

免费定制整装家居

一站置家 全程无忧 一省到底
hide.png

当前位置: 首页 > 装修案例效果图 > 恒大滨江左岸|现代风格

恒大滨江左岸|现代风格 137平 现代简约风格效果图

收藏
案例风格 现代简约 案例户型 三居 案例面积 137平米
楼盘名称 恒大滨江左岸 设计师 李丹 案例类型 改善性住宅

设计理念:设计说明:现代装饰风格,使室内空间宽敞,内外通透.让空间更简洁明亮

客厅
第1张
第2张
第3张
卧室
第1张
第2张
第3张
卫生间
第1张
厨房
第1张
第2张
书房
第1张
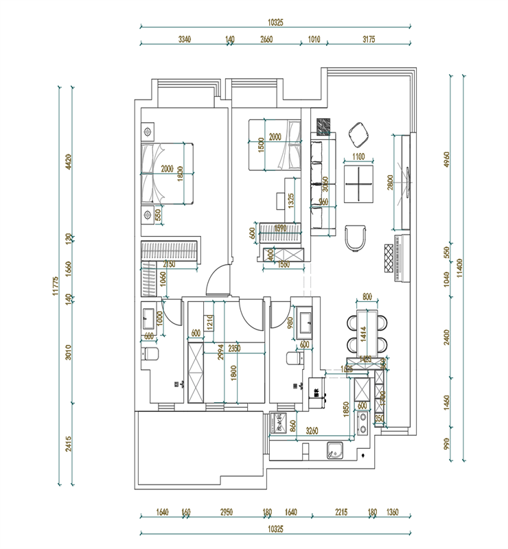
户型图
第1张
恒大滨江左岸-137平-现代风格-客厅.jpg 恒大滨江左岸-137平-现代风格-客厅 (2).jpg 恒大滨江左岸-137平-现代风格-首图.jpg

客厅设计说明:整个客厅为暖色调,简单的软装搭配,三人位搭配两把单椅。背景墙采用开放格,体现了空间的实用性.

恒大滨江左岸-137平-现代风格-次卧 (2).jpg 恒大滨江左岸-137平-现代风格-次卧 (3).jpg 恒大滨江左岸-137平-现代风格-次卧.jpg

卧室设计说明: 卧室为常规布局,衣柜与梳妆台定制为一体,节约了过道空间,使空间更高端大气.

恒大滨江左岸-137平-现代风格-卫生间.jpg

卫生间设计说明:卫生间采用常规规格地砖,地砖材质为亮面砖,方便业主打理.

恒大滨江左岸-137平-现代风格-厨房.jpg 恒大滨江左岸-137平-现代风格-厨房 (2).jpg

厨房设计说明:对于厨房的设计,以实用性为主,洗衣机也放置在厨房,节省了卫生间空间.采用浅色橱柜,地柜与吊柜颜色一致.

恒大滨江左岸-137平-现代风格-书房.jpg 户型图.png

案例设计师

李丹

设计师:李丹

从业时间:5年

设计理念:用我的专业和你的想法,打造专业的家

预约设计师

算算你家装修多少钱

报名即享丰厚赠品,享半价装修

免费报价
咨询热线:400-656-9909
20190221103704574636.jpg

精品设计案例

20180612134930523248.jpg 服务号二维码.jpg