立即预约 立即预约
免费定制整装家居

免费定制整装家居

一站置家 全程无忧 一省到底
hide.png

当前位置: 首页 > 装修案例效果图 > 中海汇德里|现代风格

中海汇德里|现代风格 127平 现代简约风格效果图

收藏
案例风格 现代简约 案例户型 三居 案例面积 127平米
楼盘名称 中海汇德里 设计师 高天 案例类型 改善性住宅

设计理念:设计说明:客厅整体采用灰白与极简黑搭配,整体白色的墙面让空间显得更加简约纯粹,哑光灰色的地砖打底让空间的层次关系清晰,营造了整体轻松舒适的氛围感。暖白沙发相辅相成,结合无主灯的设计,给人以安静和谐的感受,让主人回到家第一感受是放松的,平和的。

客厅
第1张
第2张
餐厅
第1张
卧室
第1张
第2张
第3张
卫生间
第1张
第2张
厨房
第1张
第2张
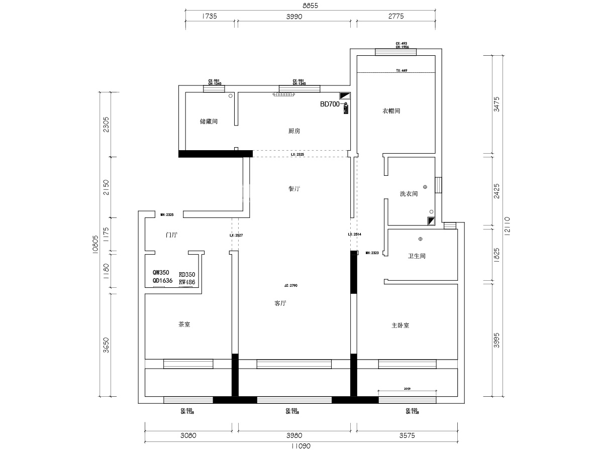
户型图
第1张
中海汇德里-127平-现代风格-客厅.jpg 中海汇德里-127平-现代风格-首图.jpg

客厅说明:本案采用低饱和度的色彩组合,让稳重内敛的气质与优雅精尚的格调并置融合,着力展呈雅致空间的艺术感染力。

中海汇德里-127平-现代风格-餐厅.jpg

餐厅说明:餐桌椅颜色的对抗在这里悄无声息的展开,是赋予视觉感官的极致享受。橱柜汲取自然气息,协调了整体空间家居的氛围,自由开放的就餐空间让人不禁融入其中,品味生活的点滴滋味。

中海汇德里-127平-现代风格-北卧.jpg 中海汇德里-127平-现代风格-南次卧.jpg 中海汇德里-127平-现代风格-主卧.jpg

卧室设计说明:卧室整体色调采用淡米色,床头柜、书桌、窗帘等一系列都配合得天衣无缝,使整个空间和谐美观统一。融入米灰地砖元素,简洁流畅,洋溢着现代文艺风情。衣柜采用无把手设计,线条干脆利落,整体立面整洁,是简约风装修设计的不二之选。床尾一整面收纳衣柜能够满足屋主一年四季的衣服收纳。

中海汇德里-127平-现代风格-主卫.jpg 中海汇德里-127平-现代风格-客卫.jpg

卫生间说明: 卫生间整体以灰色色调的设计为主,暖白色的空间在灯光的辅助下,视觉上显大且统一。

中海汇德里-127平-现代风格-厨房.jpg 中海汇德里-127平-现代风格-厨房02.jpg

厨房:厨房改成敞开式厨房让空间显得更加大气,整体的南北通透性更强,与客餐厅融为一体,橱柜连接通顶柜,柜门与全屋色调和谐一致,打造温柔好看的现代大气的厨房样式。

中海汇德里-127平-现代风格-户型图.jpg

案例设计师

高天

设计师:高天

从业时间:8年

设计理念:结合客户需求把空间做到最美化

预约设计师

算算你家装修多少钱

报名即享丰厚赠品,享半价装修

免费报价
咨询热线:400-656-9909
20190221103704574636.jpg

精品设计案例

20180612134930523248.jpg 服务号二维码.jpg