立即预约 立即预约
免费定制整装家居

免费定制整装家居

一站置家 全程无忧 一省到底
hide.png

当前位置: 首页 > 装修案例效果图 > 远洋鲲栖府|现代风格

远洋鲲栖府|现代风格 105平 现代简约风格效果图

收藏
案例风格 现代简约 案例户型 三居 案例面积 105平米
楼盘名称 远洋鲲栖府 设计师 高鹏 案例类型 改善性住宅

设计理念:设计理念: 将空间化零为整,追求空间有效利用最大化,相对独立和合理性。提高空间的利用率。设计手法上追求人与空间的和谐统一.

客厅
第1张
第2张
第3张
餐厅
第1张
卧室
第1张
第2张
厨房
第1张
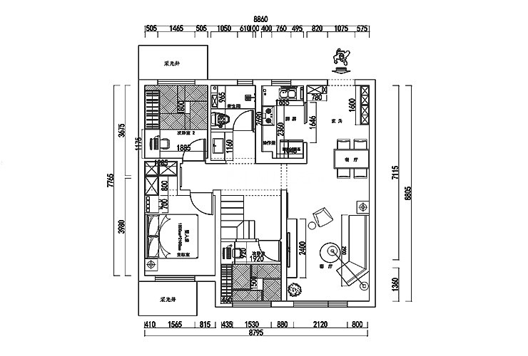
户型图
第1张
远洋鲲栖府-105平-现代风格-客厅.jpg 远洋鲲栖府-105平-现代风格-沙发墙.jpg 远洋鲲栖府-105平-现代风格-电视墙.jpg

客厅说明:喜欢简洁明亮的现代风格,沙发选择的是暖灰色贵妃位式多人一字沙发,搭配橘色小方椅,点缀了空间。电视背景墙选择了简单的米色岩板来进行颜色材质的搭配,采用嵌入式镶嵌电视,使得空间更有层次感。

远洋鲲栖府-105平-现代风格-餐厅.jpg

餐厅说明:餐厅墙壁只挂了一幅两色撞色搭配的造型壁画,享受慢节奏的生活,灰白色大理石材质的餐桌搭配理撞色餐椅,使餐厅空间更有质感。

远洋鲲栖府-105平-现代风格-客卧室.jpg 远洋鲲栖府-105平-现代风格-主卧室.jpg

卧室说明:主卧室为了使生活更方便设计了独立的步入式衣帽间,方便客户起居生活,卧室床头背景采用环保的护墙板双色搭配设计,是空间更有格调。

远洋鲲栖府-105平-现代风格-厨房.jpg

厨房说明:厨房以灰色为主体基调,采用浅灰色地砖及理石灰色墙砖进行搭配,上下分体色的橱柜搭配灰色墙砖,简单而又不失大气。

远洋鲲栖府-105平-现代风格平-平面图.jpg

案例设计师

高鹏

设计师:高鹏

从业时间:14年

设计理念:设计的核心是一种创造行为,设计要求新、求异、求变、求不同。

预约设计师

算算你家装修多少钱

报名即享丰厚赠品,享半价装修

免费报价
咨询热线:400-656-9909
20190221103704574636.jpg

精品设计案例

20180612134930523248.jpg 服务号二维码.jpg