立即预约 立即预约
免费定制整装家居

免费定制整装家居

一站置家 全程无忧 一省到底
hide.png

当前位置: 首页 > 装修案例效果图 > 旭辉璟宸府|原木奶油风

旭辉璟宸府|原木奶油风 192平 现代简约风格效果图

收藏
案例风格 现代简约 案例户型 三居 案例面积 192平米
楼盘名称 旭辉璟宸府 设计师 王松 案例类型 儿童房

设计理念:设计师整体设计理念: 因生活而设计,因设计而完美。

客厅
第1张
第2张
第3张
餐厅
第1张
卧室
第1张
第2张
卫生间
第1张
第2张
厨房
第1张
儿童房
第1张
第2张
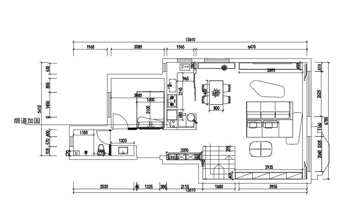
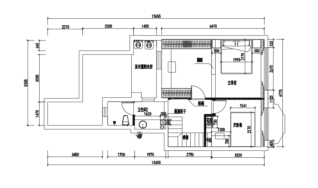
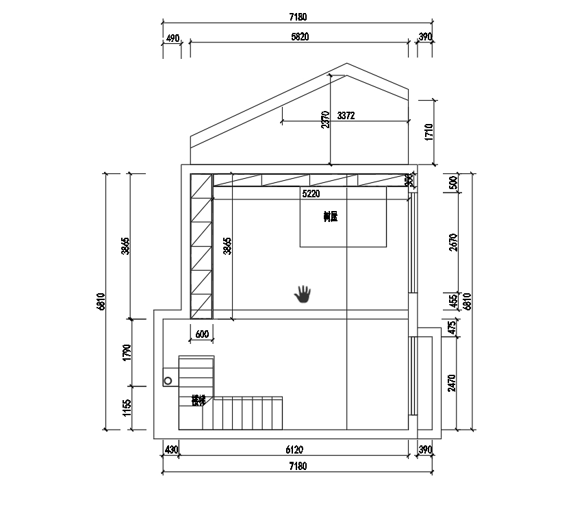
户型图
第1张
第2张
第3张
旭辉璟宸府-192平-原木奶油风格-客厅 (2).jpg 旭辉璟宸府-192平-原木奶油风格-客厅.jpg 旭辉璟宸府-192平-原木奶油风格-首图.jpg

客厅说明: 客餐厨均安排在一楼层让整个房屋合理分离动区静区,客厅上再利用了大横厅的优势在沙发背景采取圆拱造型与原木材质的书柜进而柔和整体风格,使整体风格与软装搭配形成空间融洽。

旭辉璟宸府-192平-原木奶油风格-客餐厅正.jpg 旭辉璟宸府-192平-原木奶油风格-卧室.jpg 旭辉璟宸府-192平-原木奶油风格-主卧.jpg

主卧室说明;主卧空间的主轴色以暖白色为主原木色为辅,在主卧搭以衣帽间的设计中,避免了软装搭配上的冗杂乱眼,显得空间温馨但又整洁干练。

旭辉璟宸府-192平-原木奶油风格-干湿分离卫生间.jpg 旭辉璟宸府-192平-原木奶油风格-洗手间.jpg

卫生间说明:由于整个房屋多数采用的奶油温馨风格,在卫生间的设计上更多采用了偏向现代风格所具备的简洁大方,生活气息上温馨美观的同时还能兼顾好用实用的特性。

旭辉璟宸府-192平-原木奶油风格-厨房.jpg 旭辉璟宸府-192平-原木奶油风格-阁楼树屋.jpg 旭辉璟宸府-192平-原木奶油风格-儿童房.jpg 二楼平面图.png 阁楼平面图.jpg 一楼平面图.jpg

案例设计师

王松

设计师:王松

从业时间:10年

设计理念:品味生活,从家开始

预约设计师

算算你家装修多少钱

报名即享丰厚赠品,品质装修

免费报价
咨询热线:400-656-9909
20190221103704574636.jpg

精品设计案例

20180612134930523248.jpg 服务号二维码.jpg