立即预约 立即预约
免费定制整装家居

免费定制整装家居

一站置家 全程无忧 一省到底
hide.png

当前位置: 首页 > 装修案例效果图 > 龙湖花千树

龙湖花千树 100平 现代简约风格效果图

收藏
案例风格 现代简约 案例户型 二居 案例面积 100平米
楼盘名称 龙湖花千树 设计师 王松 案例类型 婚房

设计理念:现代简约不等于简单,很多人都明白这个道理,可是很多人却做不好,最大的原因在与颜色搭配和家里的互动关系!

客厅
第1张
第2张
第3张
餐厅
第1张
第2张
第3张
卫生间
第1张
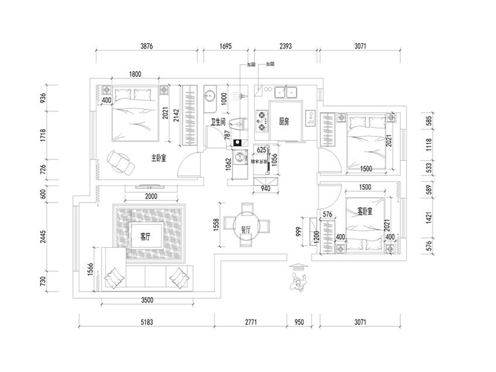
户型图
第1张
  • 案例详情

王松-龙湖花千树100平现代-客厅.jpg 王松-龙湖花千树100平现代-客厅1.jpg 王松-龙湖花千树100平现代-客厅2.jpg

在整个偏暖色的空间中要注意的颜色的搭配,墙面的颜色和家具之间的关系,线条感也是简约风格的代表,处处都存在的线条感相互呼应,营造了这个简约的空间!

王松-龙湖花千树100平现代-餐厅.jpg 王松-龙湖花千树100平现代-客厅 (2).jpg 王松-龙湖花千树100平现代-客厅 (3).jpg

水晶灯,简约的挂画,金属的装饰,线条感十足的餐桌组成饿了餐厅局域,小小的绿色植物却使整个空间不生硬,这就是软装搭配的魅力

卫生间.jpg

干净,整洁,线条感构成的卫生间,和整个空间的互动关系特别的融洽!

王松-龙湖花千树100平现代-平面图.jpg

案例设计师

王松

设计师:王松

从业时间:10年

设计理念:品味生活,从家开始

预约设计师

算算你家装修多少钱

报名即享丰厚赠品,品质装修

免费报价
咨询热线:400-656-9909
20190221103704574636.jpg

精品设计案例

20180612134930523248.jpg 服务号二维码.jpg