立即预约 立即预约
免费定制整装家居

免费定制整装家居

一站置家 全程无忧 一省到底
hide.png

当前位置: 首页 > 装修案例效果图 > 保利茉莉公馆|现代简约

保利茉莉公馆|现代简约 130平 现代简约风格效果图

收藏
案例风格 现代简约 案例户型 三居 案例面积 130平米
楼盘名称 保利茉莉公馆 设计师 肖婷婷 案例类型 改善性住宅

设计理念:设计理念: 如果感官被唤醒,那一切都是美好的

客厅
第1张
第2张
第3张
餐厅
第1张
卧室
第1张
第2张
第3张
卫生间
第1张
厨房
第1张
书房
第1张
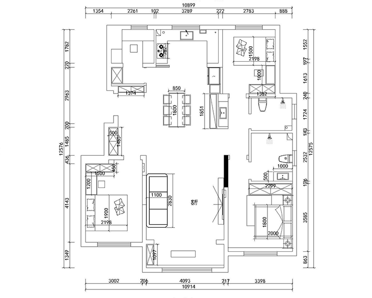
户型图
第1张
保利茉莉公馆-130平-现代简约-客厅1.jpg 保利茉莉公馆-130平-现代简约-客厅2.jpg 保利茉莉公馆-130平-现代简约-首图.jpg

客厅说明: 客厅采用了异性沙发,增加空间的灵活感,整体都使用了当下流行咖色色系,温馨大气

保利茉莉公馆-130平-现代简约-餐厅.jpg

餐厅说明: 餐厅吊顶延续客厅造型,但是家具颜色更稳重,椅子加了些跳色,稳重中不失灵活 优雅

保利茉莉公馆-130平-现代简约-儿童房.jpg 保利茉莉公馆-130平-现代简约-客房.jpg 保利茉莉公馆-130平-现代简约-主卧.jpg

主卧室说明: 主卧添加了米色系,温暖又不会审美疲劳,传统的布局,动线清晰,次卧室说明:次卧是老人房,老人退休看看报纸,写写字,所以加了写字桌,还能带小孙子学习

保利茉莉公馆-130平-现代简约-卫生间.jpg

卫生间说明:卫生间智能除雾境,智能马桶,是现在年轻人的必备品,角落加了拖布池,机器人再好,有些角落还是需要自己清理

保利茉莉公馆-130平-现代简约-厨房.jpg 保利茉莉公馆-130平-现代简约-书房.jpg 保利茉莉公馆-130平-现代简约-平图.jpg

案例设计师

肖婷婷

设计师:肖婷婷

从业时间:10年

设计理念:持之以恒的学习是设计的来源,责任感是设计的原则,而灵感是设计的升华。

预约设计师

算算你家装修多少钱

报名即享丰厚赠品,品质装修

免费报价
咨询热线:400-656-9909
20190221103704574636.jpg

精品设计案例

20180612134930523248.jpg 服务号二维码.jpg