立即预约 立即预约
免费定制整装家居

免费定制整装家居

一站置家 全程无忧 一省到底
hide.png

当前位置: 首页 > 装修案例效果图 > 御华府|现代风格

御华府|现代风格 200平 现代简约风格效果图

收藏
案例风格 现代简约 案例户型 四居 案例面积 200平米
楼盘名称 御华府 设计师 高天 案例类型 改善性住宅

设计理念:设计理念:本案建筑面积200平米,根据业主需求设计了现代风格,常住人口只有夫妻2人加小孩,父母偶尔回来居住,所以保证要有3间卧室的同时,还需要一个供孩子玩耍的亲子空间。希望尽量保证自己在各个区域时,都可以关注到孩子的活动,让孩子随时在自己的视线范围内。

餐厅
第1张
卧室
第1张
第2张
第3张
第4张
卫生间
第1张
厨房
第1张
第2张
书房
第1张
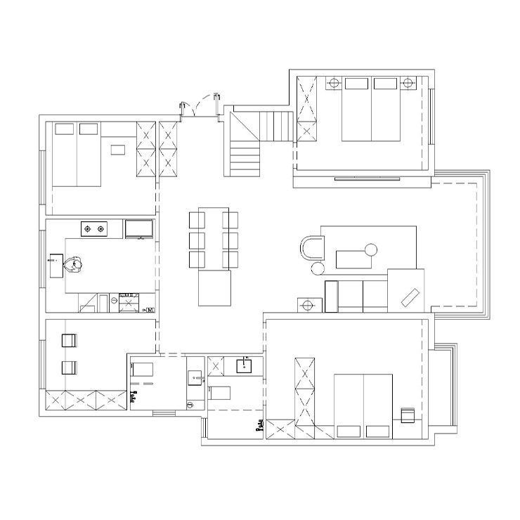
户型图
第1张
客餐厅2.jpg 次卧1.jpg 次卧3.jpg 次卧2.jpg 主卧.jpg

卧室说明:主卧的设计去繁求简,没有强烈的要素碰撞,只留下家的自然宁静。 将主卧窗台做成大飘窗,可以卧坐于此赏景发呆。 次卧说明:次卧订制衣柜,加大了收纳空间。

主卫.jpg

卫生间说明:卫生间的淋浴房保障整个空间的干燥。

厨房1.jpg 厨房2.jpg

厨房说明:厨房的现代感、高级感、科技感,都能让烹饪成为创造艺术的过程。一体式的U型操作台,将备菜至炒菜的动线规划得清晰明了,几乎不用太多的厨房经验,就能料理好一顿美味。

书房.jpg

书房说明:书房的空间并不算太大,因此悬空式的书柜与参差不齐的镂空处理,就消解了空间的逼仄感。以柔和的白色作为主色调,使得视线范围内的天地豁然开朗。尽管身居斗室,但借着书籍的翅膀,自然能舒适地遨游广袤世界。

荣华府-200平米-现代风格.jpg

案例设计师

高天

设计师:高天

从业时间:8年

设计理念:结合客户需求把空间做到最美化

预约设计师

算算你家装修多少钱

报名即享丰厚赠品,享半价装修

免费报价
咨询热线:400-656-9909
20190221103704574636.jpg

精品设计案例

20180612134930523248.jpg 服务号二维码.jpg