立即预约 立即预约
免费定制整装家居

免费定制整装家居

一站置家 全程无忧 一省到底
hide.png

当前位置: 首页 > 装修案例效果图 > 永同昌翡翠府|现代风格

永同昌翡翠府|现代风格 105平 现代简约风格效果图

收藏
案例风格 现代简约 案例户型 二居 案例面积 105平米
楼盘名称 永同昌翡翠府 设计师 姜宇 案例类型 改善性住宅

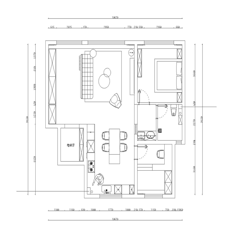
设计理念:设计理念:客户是一家三口,本房型为三室一厨一卫的户型,但是日常房主的居住需求只有两间卧室,根据客户的实际居住情况,本案把房间改成了两室,牺牲掉一个不必要的南卧,变为了整体大双厅设计,客户对于厨房、主卧、客厅、都有自己独特的设计需求,结合整体深色柜体配色,完成本案设计

客厅
第1张
第2张
餐厅
第1张
第2张
第3张
卧室
第1张
第2张
第3张
卫生间
第1张
第2张
户型图
第1张
永同昌翡翠府-105平-现代风格-客厅1.jpg 永同昌翡翠府-105平-现代风格-客厅.jpg

客厅说明:客户日常活动空间主要在客厅,所以通过牺牲不必要南次卧的方式,整体增加客厅的舒适性和空间性

永同昌翡翠府-105平-现代风格-客餐厅1.jpg 永同昌翡翠府-105平-现代风格-客餐厅.jpg 永同昌翡翠府-105平-现代风格-餐厅.jpg 永同昌翡翠府-105平-现代风格-儿童房.jpg 永同昌翡翠府-105平-现代风格-儿童房.jpg 永同昌翡翠府-105平-现代风格-主卧.jpg

卧室说明:客户对于衣柜的需求整体都放在了客厅,主卧就是一个居住休息区,所以取消了主卧主要的衣柜区域,通过定制,增加了主卧简单的收纳空间,突出了主卧大的空间元素

永同昌翡翠府-105平-现代风格-卫生间.jpg 永同昌翡翠府-105平-现代风格-干湿分离.jpg

卫生间说明:本身卫生间空间较小,通过墙体的移动,使空间得到了合理的规划

永同昌翡翠府-105平-现代风格-平面布局.jpg

案例设计师

姜宇

设计师:姜宇

从业时间:18年

设计理念:适合人居舒适的环境设计才是好设计

预约设计师

算算你家装修多少钱

报名即享丰厚赠品,品质装修

免费报价
咨询热线:400-656-9909
20190221103704574636.jpg

精品设计案例

20180612134930523248.jpg 服务号二维码.jpg