立即预约 立即预约
免费定制整装家居

免费定制整装家居

一站置家 全程无忧 一省到底
hide.png

当前位置: 首页 > 装修案例效果图 > 人杰水岸|现代风格

人杰水岸|现代风格 128平 现代简约风格效果图

收藏
案例风格 现代简约 案例户型 三居 案例面积 128平米
楼盘名称 人杰水岸 设计师 林凤设计师 案例类型 改善性住宅

设计理念:设计师整体设计理念:本案以现代简约风格出发,注重空间的布局与使用功能的完美结合,发挥结构构成本身的形式美,造型简洁,搭配上舒适自然的家居布置,棕色的细节点缀让空间更加高级大气,营造出一种轻松自然的氛围。

客厅
第1张
第2张
餐厅
第1张
卧室
第1张
第2张
卫生间
第1张
第2张
厨房
第1张
儿童房
第1张
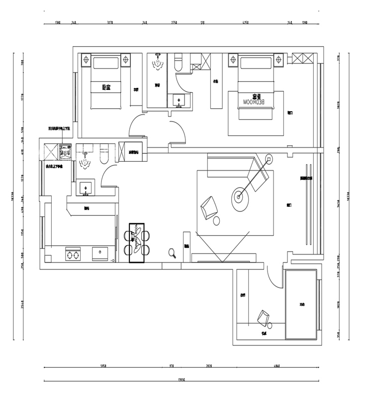
户型图
第1张
人杰水岸-128平-现代风格-客厅.jpg 人杰水岸-128平-现代风格-首图.jpg

客厅说明:客厅作为待客区域,以高级明快的设计风格为主调,同时装修较其它空间要更明快光鲜,进深感强。本案户型客厅空间宽敞,电视背景墙采用岩板做了简单的造型,既简单又大方,配上顶部的灯光,整个电视背景墙把客厅提升起来,空间开敞,内外通透,设计简单,通俗,更接近人们生活

人杰水岸-128平-现代风格-客厅.jpg

餐厅说明:本方案餐厅临近厨房,增加用餐便捷。吊顶设计,让视野得到提高,整个空间的亮度更加均匀。餐边柜以浅色系为主,使空间更加通透与明亮,具备美观的同时,增加大量的储物空间与使用功能。搭配咖色餐椅,不失主题的同时,简约又时尚。

人杰水岸-128平-现代风格-卧室.jpg 人杰水岸-128平-现代风格-卧室2.jpg 人杰水岸-128平-现代风格-卫生间.jpg 人杰水岸-128平-现代风格-卫生间2.jpg 人杰水岸-128平-现代风格-厨房.jpg 人杰水岸-128平-现代风格-餐厅.jpg 人杰水岸-128平-现代风格-平面布局图.jpg

案例设计师

林凤设计师

设计师:林凤设计师

从业时间:0年

设计理念:

预约设计师

算算你家装修多少钱

报名即享丰厚赠品,品质装修

免费报价
咨询热线:400-656-9909
20190221103704574636.jpg

精品设计案例

20180612134930523248.jpg 服务号二维码.jpg