立即预约 立即预约
免费定制整装家居

免费定制整装家居

一站置家 全程无忧 一省到底
hide.png

当前位置: 首页 > 装修案例效果图 > 金地樾檀山|现代风格

金地樾檀山|现代风格 114平 现代简约风格效果图

收藏
案例风格 现代简约 案例户型 三居 案例面积 114平米
楼盘名称 金地樾檀山 设计师 李雪 案例类型 改善性住宅

设计理念:设计师整体设计理念:本案设计整体以温柔 干净为主导,为业主打造一个简洁、舒服的家。

客厅
第1张
第2张
餐厅
第1张
卧室
第1张
第2张
卫生间
第1张
第2张
厨房
第1张
衣帽间
第1张
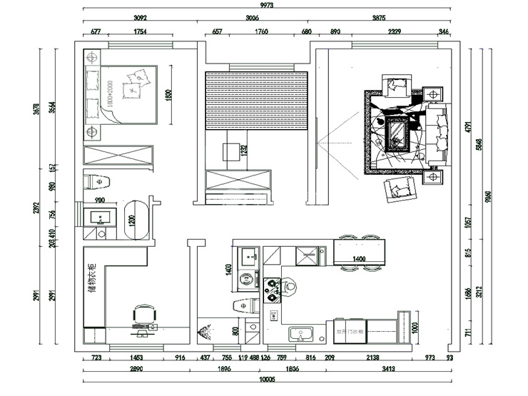
户型图
第1张
金地樾檀山-114平-现代风格-客厅 (2).jpg 金地樾檀山-114平-现代风格-客厅.jpg

客厅说明:客厅整体色调以暖白色调为主,米色的沙发颜色作为空间背景色 土橘色单椅做跳色点缀,沙发背景墙用极简抽闲挂画装饰 色调与单椅呼应 落日灯做客厅区域氛围灯跳色 电视背景墙以收纳实用收纳为主导 定制悬空电视柜部分柜子做装饰造型

金地樾檀山-114平-现代风格-餐厅.jpg

餐厅说明:餐厅区域用无主灯的方式 来做餐厅灯光氛围感 餐桌采用原木色 和客厅电视柜颜色材质呼应 整体感更强一些 餐椅采用AB版的方式 活泼时尚一些 餐边柜与入户鞋柜定制一起 整体化更好些

金地樾檀山-114平-现代风格-南次卧.jpg 金地樾檀山-114平-现代风格-主卧.jpg

主卧室说明:,整体以氛围感为主 采用无主灯设计 床头背景墙用质感比较舒服的暖色壁布极简通顶衣柜 空间感更强

金地樾檀山-114平-现代风格-客卫.jpg 金地樾檀山-114平-现代风格-主卫.jpg

主卫生间说明:主卫生间空间温柔一些暖白色的瓷砖原木色的洗手盆 都在呼应家里的整体风格 温温柔柔的

金地樾檀山-114平-现代风格-厨房.jpg 金地樾檀山-114平-现代风格-衣帽间书房.jpg

书房衣帽间说明:,象鼻灰色的衣柜 和玻璃门点缀灰色的书桌搭配 整体灵活性比较强 不会很闷 让在这个房间办公人员非常舒服不会觉得压抑

金地樾檀山-114平-现代风格-户型图.jpg

案例设计师

李雪

设计师:李雪

从业时间:6年

设计理念:设计源于生活,而又升华于生活。

预约设计师

算算你家装修多少钱

报名即享丰厚赠品,享半价装修

免费报价
咨询热线:400-656-9909
20190221103704574636.jpg

精品设计案例

20180612134930523248.jpg 服务号二维码.jpg