立即预约 立即预约
免费定制整装家居

免费定制整装家居

一站置家 全程无忧 一省到底
hide.png

当前位置: 首页 > 装修案例效果图 > 九颂大院|现代风格

九颂大院|现代风格 180平 现代简约风格效果图

收藏
案例风格 现代简约 案例户型 三居 案例面积 180平米
楼盘名称 九颂大院 设计师 林凤设计师 案例类型 改善性住宅

设计理念:设计师整体设计理念: 现代简约风格:几何线条修饰 立面立体感强,是合理运用色块和彩带的装修风格,展示了现代生活的快节奏及简单实用的生活特征,同时充满活力。从功能出发,现代简约风格注重生活的舒适性,空间清晰美观,外观简洁大方。

客厅
第1张
第2张
餐厅
第1张
卧室
第1张
第2张
厨房
第1张
儿童房
第1张
休闲区
第1张
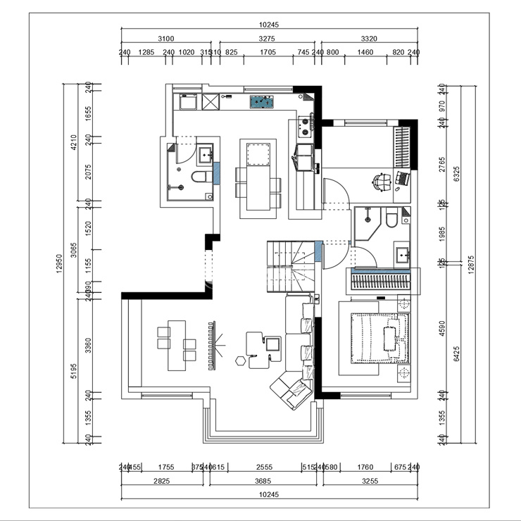
户型图
第1张
九颂大院-180平-现代风格-客餐厅.jpg 九颂大院-180平-现代风格-首图.jpg

客厅说明: 简约是现代家装的核心理念之一。简洁的线条和干净的表面是现代设计的特色。在客厅中,可以选择简洁的家具和装饰品,减少不必要的繁杂元素,使空间显得整洁而不拥挤。选择简约的配色方案也是重要的,可以采用中性色调如灰色、白色和黑色,以增加空间的明亮感和空气感

九颂大院-180平-现代风格-餐厅.jpg

餐厅说明: 这里的简单不是一个简单的含义。在简约的餐厅装修中,一定要“大小兼顾”:大,是餐厅的整体设计理念;小,是空间的细节。现代简约的餐厅装修采用浅色调装饰,不仅使其看起来干净而且还能提升食欲。

九颂大院-180平-现代风格-主卧.jpg 九颂大院-180平-现代风格-次卧.jpg

卧室说明:现代风格卧室注重空间的合理利用和功能性,在布置家具时,要根据卧室的大小和形状进行合理的规划,避免堆积和拥挤。可以选择嵌入式衣柜和收纳功能多样的家具,以提高卧室的整体利用率

九颂大院-180平-现代风格-厨房.jpg

厨房说明:L型橱柜整体宽敞,布局合理,极大的放大空间,满足屋主的品质生活!

九颂大院-180平-现代风格-儿童房.jpg 九颂大院-180平-现代风格-休闲区.jpg 九颂大院-180平-现代风格-平面图.jpg

案例设计师

林凤设计师

设计师:林凤设计师

从业时间:9年

设计理念:以人为本,一切围绕着生活来创造更佳的生活品质。

预约设计师

算算你家装修多少钱

报名即享丰厚赠品,品质装修

免费报价
咨询热线:400-656-9909
20190221103704574636.jpg

精品设计案例

20180612134930523248.jpg 服务号二维码.jpg