立即预约 立即预约
免费定制整装家居

免费定制整装家居

一站置家 全程无忧 一省到底
hide.png

当前位置: 首页 > 装修案例效果图 > 中南世纪城

中南世纪城 112平 现代简约风格效果图

收藏
案例风格 现代简约 案例户型 三居 案例面积 112平米
楼盘名称 中南世纪城 设计师 林凤设计师 案例类型 改善性住宅

设计理念:此设计方案跟我之前有一套非常成功的方案很类似,都是以现代装修为主,少量的带了一些欧式元素(欧式棚角线),充分利用了现代简约设计的优势。使用了浅色调,把欧式风格元素融入现代设计中体现浑然一体家居风格。但是有所不同或者说的最大的不同点是这个方案里有一套吧台贯穿了整个效果,非常提气!下面我们来了解一下!

客厅
第1张
第2张
第3张
餐厅
第1张
第2张
第3张
第4张
卧室
第1张
卫生间
第1张
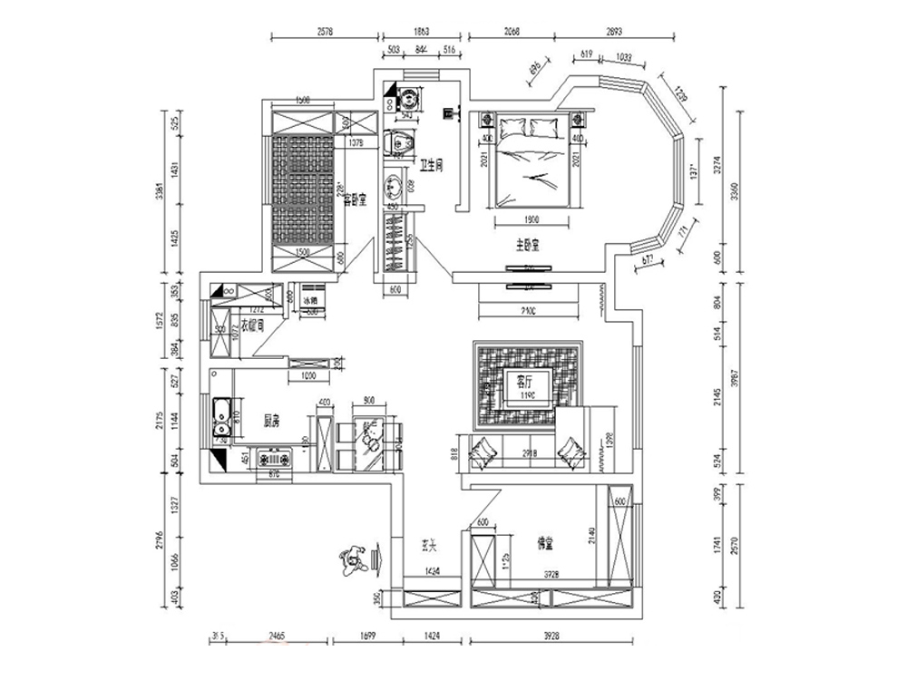
户型图
第1张
  • 案例详情

陈聪-中南世纪城-112㎡-现代风格-客厅2.jpg 陈聪-中南世纪城-112㎡-现代风格-客厅.jpg 陈聪-中南世纪城-112㎡-现代风格-客厅1.jpg

客厅电视背景墙的位置有很多门,这让电视背景墙非常的局限,怎么才能最好的吧电视背景墙做到极致呢?首先我吧电视背景墙最右面的墙体做了一个简单的造型,在挂电视的位置也做了造型,链接到右边的造型上,使得背景墙有一定的特点,最后把剩余的所有电视背景墙都贴上统一的壁纸,让有局限的背景墙做到了最大化,让整个客厅营造出时尚、高贵、轻松、的视觉感,营造出一个朴实之中的时尚的家居设计。

陈聪-中南世纪城-112㎡-现代风格-餐厅.jpg 陈聪-中南世纪城-112㎡-现代风格-餐厅2.jpg 陈聪-中南世纪城-112㎡-现代风格-餐厅3.jpg 陈聪-中南世纪城-112㎡-现代风格-餐厅4.jpg

餐厅刚刚我提到过,吧原来的墙体砸掉,做出来一个吧台,餐厅吧台连接着开放式厨房和餐桌中间,即吧空间格局分离出来,又把多个空间给穿插起来,使得整个空间整体化,美观大气油然而生。

陈聪-中南世纪城-112㎡-现代风格-卧室.jpg

此方案卧室最大的特点是八角窗,视野非常的开阔,卧室同样延续了客厅的设计风格,简约的背景墙,加上暖黄色的色调处理,明亮的空间,卧室变得充满阳光、安静、舒适感,可以让人有很好休息、睡眠。

陈聪-中南世纪城-112㎡-现代风格-卫生间.jpg

卫生间是把山户型,本身有窗户,所以墙砖主要以暖黄色为主,即使人置身其中也不会感到压抑,冬天洗澡从视觉显得更温暖一些,彻底的放松身体。

陈聪-中南世纪城-112㎡-现代风格-户型图.jpg

案例设计师

林凤设计师

设计师:林凤设计师

从业时间:9年

设计理念:细节是基础,专注是根本

预约设计师

算算你家装修多少钱

报名即享丰厚赠品,享半价装修

免费报价
咨询热线:400-656-9909
20190221103704574636.jpg

精品设计案例

20180612134930523248.jpg 服务号二维码.jpg