立即预约 立即预约
免费定制整装家居

免费定制整装家居

一站置家 全程无忧 一省到底
hide.png

当前位置: 首页 > 装修案例效果图 > 方大白沙岛欣湖里|现代风格

方大白沙岛欣湖里|现代风格 140平 现代简约风格效果图

收藏
案例风格 现代简约 案例户型 三居 案例面积 140平米
楼盘名称 方大白沙岛欣湖里 设计师 李晶 案例类型 改善性住宅

设计理念:设计理念:整体空间硬装,简单干净直爽
整体黑白灰色系

客厅
第1张
第2张
餐厅
第1张
第2张
卧室
第1张
第2张
厨房
第1张
第2张
衣帽间
第1张
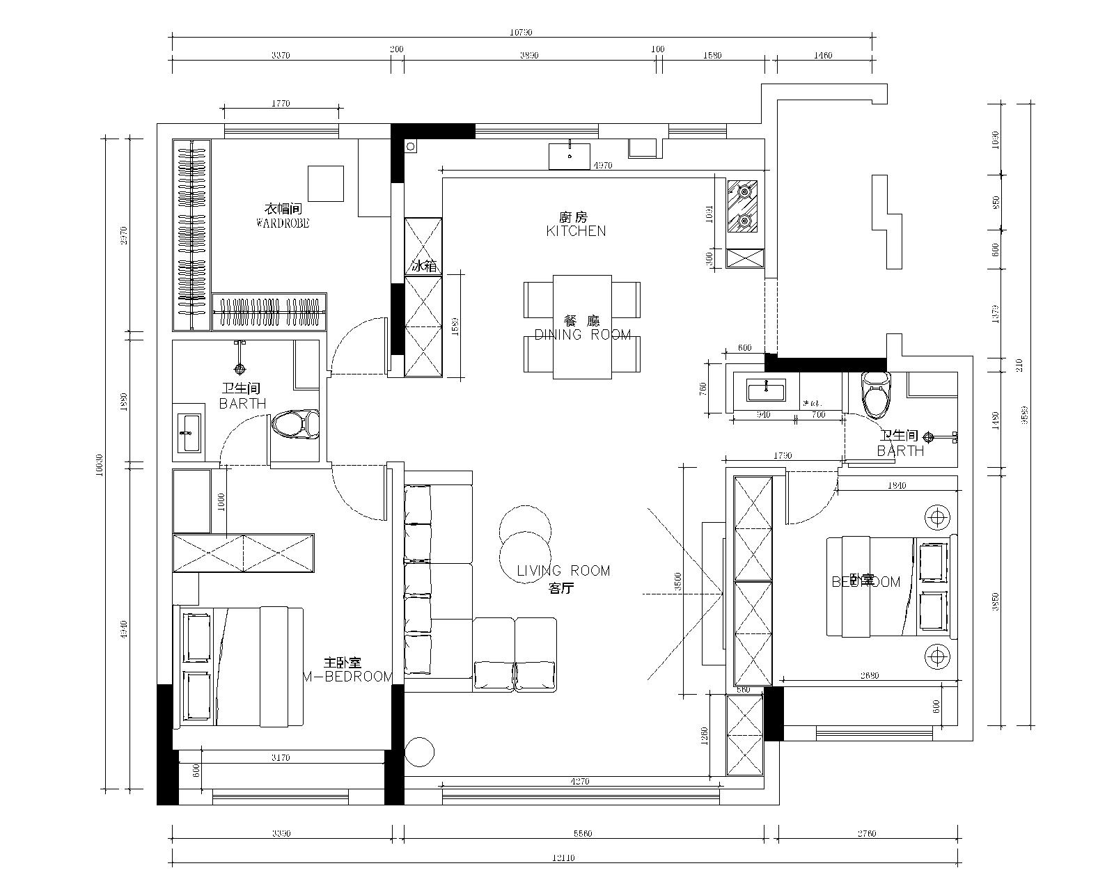
户型图
第1张
方大白沙岛欣湖里客厅1.jpg 方大白沙岛欣湖里客厅2.jpg

客厅说明:暖灰色哑光地砖干净,整洁

方大白沙岛欣湖里餐厅.jpg 方大白沙岛欣湖里餐厅1.jpg 方大白沙岛欣湖里次卧.jpg 方大白沙岛欣湖里主卧.jpg

卧室说明:无主灯设计适合睡眠,满足储物

方大白沙岛欣湖里厨房.jpg 方大白沙岛欣湖里厨房1.jpg

厨房说明:满足洗切炒的功能外,尽量储物多一些,开放式厨房配色与客厅衔接

方大白沙岛欣湖里衣帽间.jpg 方大白沙岛欣湖里140㎡现代风平面图.jpg

案例设计师

李晶

设计师:李晶

从业时间:8年

设计理念:以人为本,设计的是一种生活状态。

预约设计师

算算你家装修多少钱

报名即享丰厚赠品,享半价装修

免费报价
咨询热线:400-656-9909
20190221103704574636.jpg

精品设计案例

20180612134930523248.jpg 服务号二维码.jpg