立即预约 立即预约
免费定制整装家居

免费定制整装家居

一站置家 全程无忧 一省到底
hide.png

当前位置: 首页 > 装修案例效果图 > 伯爵源筑

伯爵源筑 120平 现代简约风格效果图

收藏
案例风格 现代简约 案例户型 二居 案例面积 120平米
楼盘名称 伯爵源筑 设计师 王松 案例类型 婚房

设计理念:本案主要整体装修以现代风格为主,主要体现房屋明亮,宽敞,不受拘束,白色的空间和黑镜灰墙的点缀让整个房间尽显时尚感。

客厅
第1张
第2张
第3张
第4张
餐厅
第1张
卧室
第1张
第2张
厨房
第1张
第2张
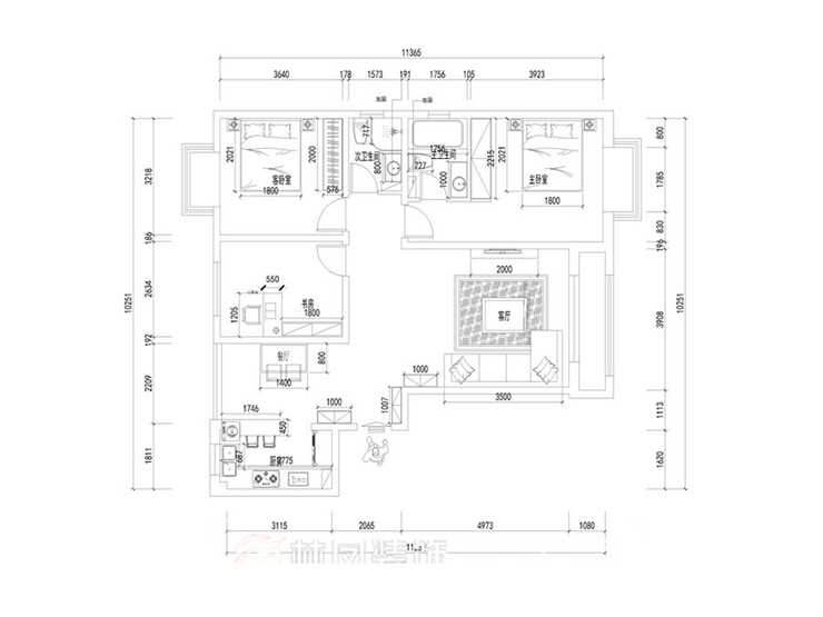
户型图
第1张
  • 案例详情

王松-伯爵原著120平现代风格-餐厅.jpg 王松-伯爵原著120平现代风格-客厅2.jpg 王松-伯爵原著120平现代风格-客厅.jpg 王松-伯爵原著120平现代风格-客厅1.jpg

客厅整体运用普通的直线圈棚做吊顶,内有暖白的光带,双眼射灯更能凸显出背景墙,还有沙发背景墙挂画的质感,但是背景墙采用云石纹理的瓷砖上墙,配上黑色的镜片收边,看着精巧细腻,能看的出来主人对生活有一定的要求,注重质感。沙发的颜色跟背景墙是同色系,整个空间看起来和谐,大方。

王松-伯爵原著120平现代风格-餐厅.jpg

因为房主上一套房子的厨房就比较小,还特别喜欢做西点,所以对这套的要求就是有一个大大的厨房,这回就满足房主的要求了,在餐厅和客厅之间做了一个大大的岛台,从材质上也区别于传统的方案,整体空间采用灰色的壁纸做墙面,在橱柜烹饪区域加了白钢板这样看起来非常时尚,这也是本案设计中的亮点。

王松-伯爵原著120平现代风格-卧室.jpg 卧室 (2).jpg

在黑白灰为主的卧室中少许的加了点米黄色,使整个的空间的温馨气息增添了不少,床头的挂画和粗狂纹理的灰木色地板让时尚现代风格中,又加入了少许的好莱坞元素。

王松-伯爵原著120平现代风格-厨房.jpg 王松-伯爵原著120平现代风格-厨房 (2).jpg 王松-伯爵原著120平现代风格-户型图.jpg

案例设计师

王松

设计师:王松

从业时间:10年

设计理念:品味生活,从家开始

预约设计师

算算你家装修多少钱

报名即享丰厚赠品,品质装修

免费报价
咨询热线:400-656-9909
20190221103704574636.jpg

精品设计案例

20180612134930523248.jpg 服务号二维码.jpg