立即预约 立即预约
免费定制整装家居

免费定制整装家居

一站置家 全程无忧 一省到底
hide.png

当前位置: 首页 > 装修案例效果图 > 越秀星汇云锦|奶油风格

越秀星汇云锦|奶油风格 141平 其他风格效果图

收藏
案例风格 其他 案例户型 三居 案例面积 141平米
楼盘名称 越秀星汇云锦 设计师 白涵琦 案例类型 改善性住宅

设计理念:1.设计师整体设计理念:整体以奶咖色、米色、白色为主,呈现出的空间通透干净,简约又有层次; 硬装简洁,家居线条柔和,整体风格简洁统一; 温和质感的材质运用较多,棉麻布艺是空间的点缀和关键。 奶油搭配米色、暖灰色、原木色等其他饱和度比较低的色彩,最后再用一些带有重色的家具、木料或墨绿的植物,起到对比和突出的视觉效果。 奶油色本身给人的质感就是细腻温柔,因此家具材质的选择上,倾向选择绒布、亚麻、原木、藤编等这些有肌理感又带有温暖气息的材质,与整体空间氛围搭配起来更加和谐。

客厅
第1张
第2张
餐厅
第1张
卧室
第1张
第2张
第3张
卫生间
第1张
第2张
厨房
第1张
书房
第1张
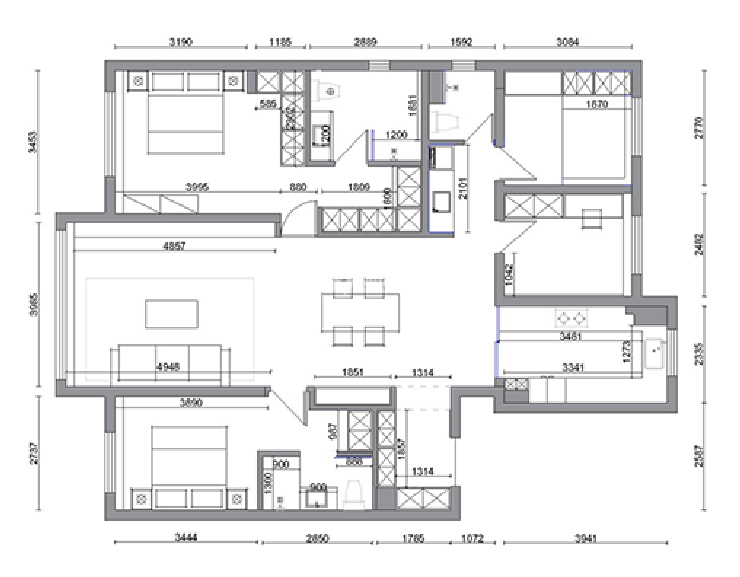
户型图
第1张
越秀星汇云锦二期-141平-奶油风-客餐厅.jpg 越秀星汇云锦二期-141平-奶油风-首图.jpg

客厅说明: 客厅不仅作为会客起居之用,更是主人生活方式跟品味的展示。以暖色调为主,用色简洁大气而温馨,搭配硬朗的线条灯使整个空间更有质感。客厅与餐厅通透连贯,视觉上延伸空间。

越秀星汇云锦二期-141平-奶油风-餐厅.jpg 越秀星汇云锦二期-141平-奶油风-次卧.jpg 越秀星汇云锦二期-141平-奶油风-榻榻米.jpg 越秀星汇云锦二期-141平-奶油风-主卧.jpg 越秀星汇云锦二期-141平-奶油风-干区.jpg 越秀星汇云锦二期-141平-奶油风-卫生间.jpg

卫生间说明:卫生间采用暖色调,配合浴屏分割干湿区,让卫生间更大气,整体的色调给人一种温馨的感觉。

越秀星汇云锦二期-141平-奶油风-厨房.jpg

厨房说明: 厨房采用U型厨房。空间整洁大方。视觉上产生延伸效果。

越秀星汇云锦二期-141平-奶油风-书房.jpg

书房说明:空间光线明亮,视野宽广,增加阅读的欲望和心情。

越秀星汇云锦二期-141平-奶油风-平面图.jpg

案例设计师

白涵琦

设计师:白涵琦

从业时间:10年

设计理念:设计实现客户家居梦想

预约设计师

算算你家装修多少钱

报名即享丰厚赠品,享半价装修

免费报价
咨询热线:400-656-9909
20190221103704574636.jpg

精品设计案例

20180612134930523248.jpg 服务号二维码.jpg