立即预约 立即预约
免费定制整装家居

免费定制整装家居

一站置家 全程无忧 一省到底
hide.png

当前位置: 首页 > 装修案例效果图 > 中铁建云璟|美式风格

中铁建云璟|美式风格 120平 美式风格效果图

收藏
案例风格 美式 案例户型 三居 案例面积 120平米
楼盘名称 中铁建云璟 设计师 郑婷婷 案例类型 改善性住宅

设计理念:设计师整体设计说明: 本方案采用美式风格,业主对美式的温馨情有独钟,但也希望家的氛围足够轻盈自由;风格并不是很过分的强调繁复的雕刻,以舒适和多功能为主,但是同时也不失旧,浪漫的感觉精致做旧的艺术摆件烘托出贵气讲究的家居氛围。

客厅
第1张
第2张
卧室
第1张
第2张
第3张
卫生间
第1张
第2张
第3张
厨房
第1张
衣帽间
第1张
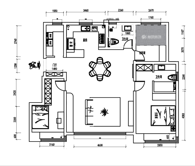
户型图
第1张
设计五部-郑婷婷-中铁建云璟-120平-美式风格-客厅.jpg 设计五部-郑婷婷-中铁建云璟-120平-美式风格-首图.jpg

客厅说明: 首先进入视线的是大开间布局的客厅,整个空间以奶油白为底,配以原木等色调创造更多层次感,以最为简单纯粹的颜色打磨空间。现代与古典的混搭,让空间更具岁月感。

设计五部-郑婷婷-中铁建云璟-120平-美式风格-北次卧.jpg 设计五部-郑婷婷-中铁建云璟-120平-美式风格-主卧.jpg 设计五部-郑婷婷-中铁建云璟-120平-美式风格-南次卧.jpg

主卧室说明:主卧未设计强烈的色彩与繁杂的装饰,回归柔软舒适的休憩本质。悬挂在床头的吊灯,深色的木边几,富有设计感的复古床,共同点缀着空间的主题。

设计五部-郑婷婷-中铁建云璟-120平-美式风格-次卫 (2).jpg 设计五部-郑婷婷-中铁建云璟-120平-美式风格-主卫.jpg 设计五部-郑婷婷-中铁建云璟-120平-美式风格-次卫.png

主卫说明:超长浴室柜一半洗漱一半梳妆台下也是一半放收纳一整柜都可以用来置物收纳将淋浴区和马桶区用玻璃隔断成了两个小单间既有阳光又有独立的空间

设计五部-郑婷婷-中铁建云璟-120平-美式风格-厨房.jpg

厨房说明:厨房没有做传统推拉门,而是将门洞拆除,设计了一个吧台区域,增加了操作台空间,U型厨房收纳空间增多。

设计五部-郑婷婷-中铁建云璟-120平-美式风格-洗衣房.jpg 设计五部-郑婷婷-中铁建云璟-120平-美式风格-平面.jpg

案例设计师

郑婷婷

设计师:郑婷婷

从业时间:9年

设计理念:用心与住宅对话,交织出住宅中的灵魂所属

预约设计师

算算你家装修多少钱

报名即享丰厚赠品,品质装修

免费报价
咨询热线:400-656-9909
20190221103704574636.jpg

精品设计案例

20180612134930523248.jpg 服务号二维码.jpg