立即预约 立即预约
免费定制整装家居

免费定制整装家居

一站置家 全程无忧 一省到底
hide.png

当前位置: 首页 > 装修案例效果图 > 华润时代之城|现代奶油

华润时代之城|现代奶油 142平 其他风格效果图

收藏
案例风格 其他 案例户型 三居 案例面积 142平米
楼盘名称 华润时代之城 设计师 林凤设计师 案例类型 改善性住宅

设计理念:设计理念:现代奶油风,注重于干净清爽的硬装,软装材质要细腻,整体色调和谐统一,增加软萌可爱的元素,奶油风凭借着温柔、治愈的特点赢得了众多年轻人的喜欢,要打造一个高颜值的奶油风氛围要从材质、造型、灯光以及配色这四个方面着手

客厅
第1张
第2张
第3张
餐厅
第1张
第2张
第3张
卧室
第1张
第2张
第3张
第4张
卫生间
第1张
第2张
厨房
第1张
第2张
第3张
衣帽间
第1张
门厅
第1张
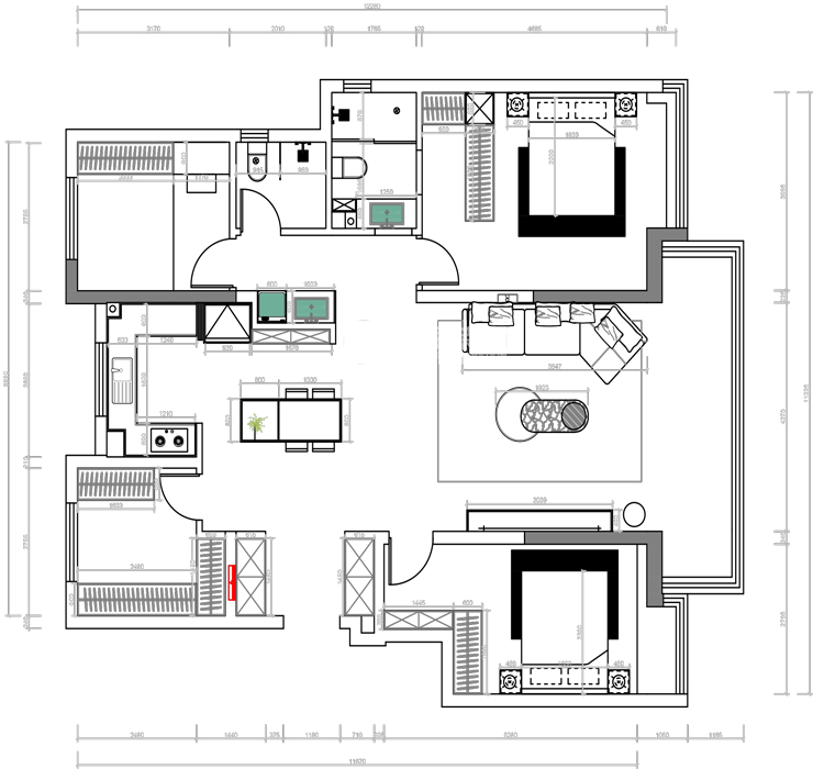
户型图
第1张
华润时代之城-142平-现代奶油风格-首图.jpg 华润时代之城-142平-现代奶油风格-客厅.jpg 华润时代之城-142平-现代奶油风格-客厅2.jpg

客厅说明:客厅铺米色墙布,奶油沙发搭配柔软舒适的无胶地毯,温柔又好看。

华润时代之城-142平-现代奶油风格-餐厅.jpg 华润时代之城-142平-现代奶油风格-餐厅2.jpg 华润时代之城-142平-现代奶油风格-餐厅3.jpg 华润时代之城-142平-现代奶油风格-次卧.jpg 华润时代之城-142平-现代奶油风格-榻榻米.jpg 华润时代之城-142平-现代奶油风格-主卧.jpg 华润时代之城-142平-现代奶油风格-主卧2.jpg

卧室说明:卧室采用简单的双眼皮吊顶配上简约耐看的吊灯,房间更加通透敞亮,衣柜做一门到顶不积灰还美观耐看。床头背景增加一些艺术画饰,打破单调感同时营造一定的艺术气息。

华润时代之城-142平-现代奶油风格-卫生间.jpg 华润时代之城-142平-现代奶油风格-卫生间干区.jpg

卫生间说明:洗手台外置,洗漱互不干扰效率加倍,淋浴区用玻璃推拉门完全隔开,整个空间通铺同色瓷砖,空间连贯,视觉上显大。

华润时代之城-142平-现代奶油风格-厨房.jpg 华润时代之城-142平-现代奶油风格-厨房2.jpg 华润时代之城-142平-现代奶油风格-厨房3.jpg

厨房说明:U型厨房,门板没有坐拉手,极简的设计,视觉空间效果更好。

华润时代之城-142平-现代奶油风格-衣帽间.jpg

衣帽间说明:全屋奶油色调+双眼皮吊顶,一柜到顶,大气又好看。整排衣柜,增加视觉感,大大增加储物空间。

华润时代之城-142平-现代奶油风格-门厅.jpg 华润时代之城-142平-现代奶油风格-户型图.jpg

案例设计师

林凤设计师

设计师:林凤设计师

从业时间:9年

设计理念:以人为本,一切围绕着生活来创造更佳的生活品质。

预约设计师

算算你家装修多少钱

报名即享丰厚赠品,享半价装修

免费报价
咨询热线:400-656-9909
20190221103704574636.jpg

精品设计案例

20180612134930523248.jpg 服务号二维码.jpg