立即预约 立即预约
免费定制整装家居

免费定制整装家居

一站置家 全程无忧 一省到底
hide.png

当前位置: 首页 > 装修案例效果图 > 月星国际城央华墅|新中式

月星国际城央华墅|新中式 342平 新中式风格效果图

收藏
案例风格 新中式 案例户型 四居 案例面积 342平米
楼盘名称 月星国际城央华墅 设计师 贺博文 案例类型 儿童房

设计理念:设计师整体设计理念: 因生活而设计,因设计而完美。

客厅
第1张
第2张
第3张
第4张
餐厅
第1张
卧室
第1张
第2张
第3张
第4张
卫生间
第1张
厨房
第1张
书房
第1张
休闲区
第1张
户型图
第1张
第2张
第3张
第4张
第5张
贺博文设计-星月国际别墅-342平-客厅.jpg 贺博文设计-星月国际别墅-342平-客厅2.jpg 贺博文设计-星月国际别墅-342平-客厅3.jpg 贺博文设计-星月国际别墅-342平-客厅4.jpg

客厅说明: 新中式风格颜色的色调比较明朗,在家具的搭配上,也不像传统那样,全是实木家具,看起来线条比较生硬。新中式是中式风格和现代风格融合的产物,它的格调沿用了传统的中式元素,带着典雅的感觉。在客厅吊顶、家具等方面又采用了时尚的元素,比如璀璨夺目的吊顶,柔软舒适的布艺沙发。客厅以素雅为主基调,客厅灰白色的沙发毫不张扬,金属材质的边几又为客厅增頃几分时尚感。精致的工艺吊灯如同夜空中绚丽的烟花一浪漫,阳光透过轻纱,柔和的光线照射进客厅,质感细腻的大理石做电视背景墙造型,提升层次感

贺博文设计-星月国际别墅-342平-餐厅.jpg

餐厅说明:客厅与餐厅连贯,餐厅的软装造型对应客厅,使空间色彩统一不杂乱,在装饰细节上保留自然情趣,精雕细琢,富于变化,充分体现出中国传统美学精神,人间烟火味,最抚凡人心。餐厅区是家居生活中最具幸福感的地方。

贺博文设计-星月国际别墅-342平-二楼北卧.jpg 贺博文设计-星月国际别墅-342平-三楼主卧.jpg 贺博文设计-星月国际别墅-342平-二楼主卧.jpg 贺博文设计-星月国际别墅-342平-二楼主卧2.jpg

卧室说明:主卧空间,延续自客厅的装饰,清新淡雅,于细微处彰显屋主品味,不过分张扬,却别有一番滋味,两个主卧运用同一色系,给人一种宁静致远的感觉,让人放下身心享受生活的慢节奏,简洁的中式硬包,化繁为简用最少的设计语言,表达最深沉稳的木质墙板与纤细的金属线条碰撞交织,提升空间品质。

贺博文设计-星月国际别墅-342平-三楼主卫.jpg 贺博文设计-星月国际别墅-342平-厨房.jpg 贺博文设计-星月国际别墅-342平-三楼书房.jpg

书房说明: 对于书房的设计更具备的中国元素,首先在书桌和书椅的相互融合设计的理念中,实木的书桌和书椅,同材质橱柜设计,旁边放置现代休闲沙发这样设计完全符合新中式的搭配方式。表达出现代人对于古老艺术的极致追求。中式风格给人一种沉稳、大气感。

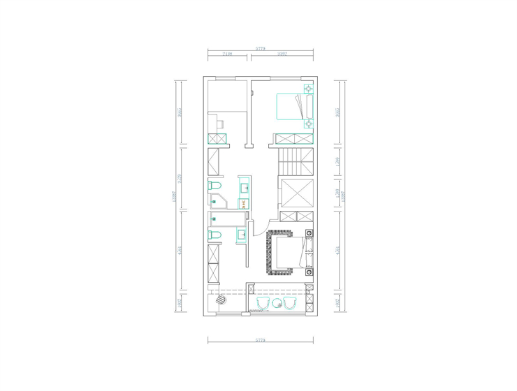
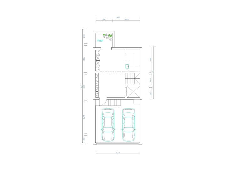
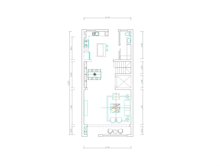
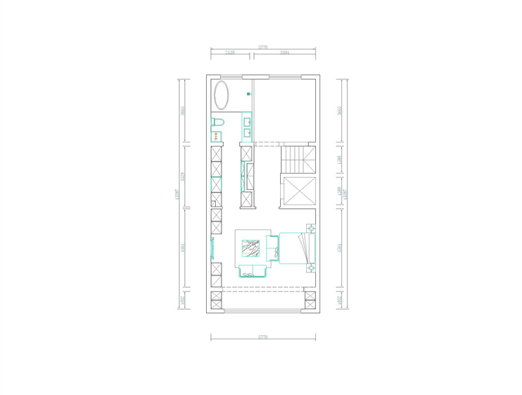
贺博文设计-星月国际别墅-342平-多功能室.jpg 贺博文设计-星月国际别墅-342平-二楼.jpg 贺博文设计-星月国际别墅-342平-负一楼.jpg 贺博文设计-星月国际别墅-342平-三楼.jpg 贺博文设计-星月国际别墅-342平-四楼.jpg 贺博文设计-星月国际别墅-342平-一楼.jpg

案例设计师

贺博文

设计师:贺博文

从业时间:20年

设计理念:有限空间、无限艺术

预约设计师

算算你家装修多少钱

报名即享丰厚赠品,享半价装修

免费报价
咨询热线:400-656-9909
20190221103704574636.jpg

精品设计案例

20180612134930523248.jpg 服务号二维码.jpg