立即预约 立即预约
免费定制整装家居

免费定制整装家居

一站置家 全程无忧 一省到底
hide.png

当前位置: 首页 > 装修案例效果图 > 澳海白沙岛|现代轻奢

澳海白沙岛|现代轻奢 139平 轻奢风格效果图

收藏
案例风格 轻奢 案例户型 三居 案例面积 139平米
楼盘名称 澳海白沙岛 设计师 肖婷婷 案例类型 改善性住宅

设计理念:

客厅
第1张
第2张
餐厅
第1张
第2张
卧室
第1张
第2张
卫生间
第1张
第2张
厨房
第1张
休闲区
第1张
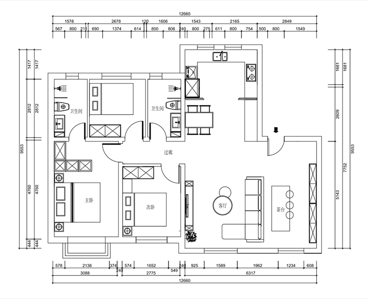
户型图
第1张
澳海白沙岛-139平-现代轻奢-客厅.jpg 澳海白沙岛-139平-现代轻奢-沙发背景.jpg

客厅说明: 客厅和书房的间墙打通 形成一个大的功能空间 室内格调立马转变 变成全明采光 室内空间感更加开阔 功能布局灵活多变 让会客空间更加灵动

澳海白沙岛-139平-现代轻奢-餐厅.jpg 澳海白沙岛-139平-现代轻奢-餐厅1.jpg

餐厅说明:餐厅延续客厅配色,彩色的餐椅为空间提亮,石材餐桌强化耐用度抗污力强,美观简洁 不需要太多储物空间 简介明了 形成客 餐 书 三个空间浑然一体

澳海白沙岛-139平-现代轻奢-儿童房.jpg 澳海白沙岛-139平-现代轻奢-主卧.jpg

卧室说明:卧室更多的以表现手法为主 让空间布局更加展示化 软装搭配更加体现个性 放飞自我

澳海白沙岛-139平-现代轻奢-公卫.jpg 澳海白沙岛-139平-现代轻奢-主卫.jpg

卫生间说明:卫生间做成干湿分区 更加合理 方便使用 空间使用率更高 现代人生活节奏快 体现合理使用上的人性化

澳海白沙岛-139平-现代轻奢-厨房.jpg

厨房说明:以大理石瓷砖铺装,风格上形成统一,岩板材质的台面和白色柜子的搭配黑色线条的点缀,黑白灰加暖色搭配是永恒的经典,冰箱的摆放位置即节省厨房空间,最大限度的保留橱柜的长度,功能使用更加便捷

澳海白沙岛-139平-现代轻奢-多功能室.jpg 澳海白沙岛-139平-现代轻奢-平面布置图.jpg

案例设计师

肖婷婷

设计师:肖婷婷

从业时间:10年

设计理念:持之以恒的学习是设计的来源,责任感是设计的原则,而灵感是设计的升华。

预约设计师

算算你家装修多少钱

报名即享丰厚赠品,品质装修

免费报价
咨询热线:400-656-9909
20190221103704574636.jpg

精品设计案例

20180612134930523248.jpg 服务号二维码.jpg