立即预约 立即预约
免费定制整装家居

免费定制整装家居

一站置家 全程无忧 一省到底
hide.png

当前位置: 首页 > 装修案例效果图 > 御水澜湾|现代风格

御水澜湾|现代风格 121平 现代简约风格效果图

收藏
案例风格 现代简约 案例户型 四居 案例面积 121平米
楼盘名称 御水澜湾 设计师 慈英雪 案例类型 改善性住宅

设计理念:设计师整体设计理念: 设计师对于空间的动线与视线所到之处都有着细节统一的设计,在对景的配色处理上环环相扣,在材质选择上互相穿插,不同材质的融合,碰撞上有趣的色彩,寻找内心永恒的潮流。再极简设计手法的引领下,实现空间、色彩本质的回归。

客厅
第1张
第2张
第3张
餐厅
第1张
卧室
第1张
第2张
第3张
卫生间
第1张
厨房
第1张
第2张
第3张
衣帽间
第1张
第2张
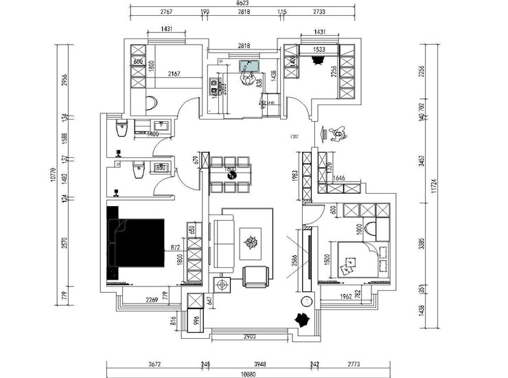
户型图
第1张
御水澜湾-121平-现代轻奢风格-客餐厅 (5).jpg 御水澜湾-121平-现代轻奢风格-客餐厅 (3).jpg 御水澜湾-121平-现代轻奢风格-客餐厅 (4).jpg

客厅说明: 客厅设计通过墙体改造,增加了电视背景墙与沙发的空间,将整体空间更加开阔,空间得到充分利用。经过对墙体的处理,客餐厅更为立体,门口扩大增加整体视觉感觉,空间层次感很强。

御水澜湾-121平-现代轻奢风格-客餐厅.jpg 御水澜湾-121平-现代轻奢风格-次卧.jpg 御水澜湾-121平-现代轻奢风格-主卧 (2).jpg 御水澜湾-121平-现代轻奢风格-主卧.jpg

卧室说明: 主卧室不仅是睡眠、休息的地方,而且是最具私隐性的空间。因此,主卧室设计必须依据主人的年龄、性格、志趣爱好,考虑宁静稳重的或是浪漫舒适的情调,创造一个完全属于个人的温馨环境,整体空间非常大,柜体移动至靠门墙增强空间实用性。

御水澜湾-121平-现代轻奢风格-主卫.jpg

卫生间说明: 卫生间规划了动线,由于这些卫生间范围有限,所以在空间布局上讲究充分利用有限的空间,进行合理的布局。在卫浴产品的选择上应该注重各个产品之间的排列和实用性。

御水澜湾-121平-现代轻奢风格-厨房 (2).jpg 御水澜湾-121平-现代轻奢风格-厨房 (3).jpg 御水澜湾-121平-现代轻奢风格-厨房.jpg

厨房说明:厨房的设计不知以美观为设记原则,而要注重实际应用。在这里我选用的是U型,即将清洗、配膳与烹调三大工作为中心,依次配置于相互相连的U型墙壁空间,采用这样的布局,会使的烹饪过程井然有序,不会因中间某些过程而导致烹饪的混乱。使用此厨房的布局会觉得烹饪是如此简单,因为我已经将烹饪的流程安排在厨具的安排上。 将清洗台安放在窗户前面,让你在清洗时更加容易分辨,便于清洗,也让你在劳作时欣赏外面的自然景色,感受外面清新的空气,让你劳作的疲劳轻而易举的消除。

御水澜湾-121平-现代轻奢风格-衣帽间 (2).jpg 御水澜湾-121平-现代轻奢风格-衣帽间.jpg 御水澜湾--施工图-Model.jpg

案例设计师

慈英雪

设计师:慈英雪

从业时间:8年

设计理念:做有情感的设计,做符合生活方式的设计,无限优化生活空间

预约设计师

算算你家装修多少钱

报名即享丰厚赠品,享半价装修

免费报价
咨询热线:400-656-9909
20190221103704574636.jpg

精品设计案例

20180612134930523248.jpg 服务号二维码.jpg