立即预约 立即预约
免费定制整装家居

免费定制整装家居

一站置家 全程无忧 一省到底
hide.png

当前位置: 首页 > 装修案例效果图 > 浦江苑御品|现代风格

浦江苑御品|现代风格 95平 现代简约风格效果图

收藏
案例风格 现代简约 案例户型 二居 案例面积 95平米
楼盘名称 浦江苑御品 设计师 姜宇 案例类型 改善性住宅

设计理念:设计师整体设计理念:本案设计整体以温馨,舒适为主导,为业主打造一个简洁、功能性强的家。

客厅
第1张
第2张
第3张
第4张
卧室
第1张
卫生间
第1张
第2张
厨房
第1张
第2张
门厅
第1张
第2张
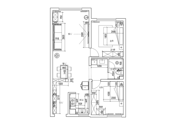
户型图
第1张
浦江苑御品-95平-现代风格- -客厅.jpg 浦江苑御品-95平-现代风格- 客 厅.jpg 浦江苑御品-95平-现代风格- 客厅.jpg 浦江苑御品-95平-现代风格- 首图.jpg

客厅说明:客厅整体色调以黑白灰为主,浅灰色的沙发与主色调形成了对比,浅灰色电视背景墙更是凸显高级感。

浦江苑御品-95平-现代风格- 卧室.jpg

卧室说明: 卧室家具富有时尚感,现代气息明显。床头定制床头柜令卧室整体更加温馨和谐灰色床头背景墙更加时尚。

浦江苑御品-95平-现代风格- 干区.jpg 浦江苑御品-95平-现代风格- 湿区.jpg

卫生间说明:卫生间采用干湿分离的方式,干区地面与客厅地砖通铺,十分干净简洁,充满现代感。

浦江苑御品-95平-现代风格- 厨 房.jpg 浦江苑御品-95平-现代风格- 厨房.jpg

厨房说明:本案是开放式厨房,U型橱柜采用灰色,暖灰色理石的地砖和墙砖,让整个厨房空间整洁,干净。

浦江苑御品-95平-现代风格- 玄 关.jpg 浦江苑御品-95平-现代风格- 玄关.jpg 浦江苑御品-100平-现代风格-原始图.jpg

案例设计师

姜宇

设计师:姜宇

从业时间:18年

设计理念:适合人居舒适的环境设计才是好设计

预约设计师

算算你家装修多少钱

报名即享丰厚赠品,品质装修

免费报价
咨询热线:400-656-9909
20190221103704574636.jpg

精品设计案例

20180612134930523248.jpg 服务号二维码.jpg