立即预约 立即预约
免费定制整装家居

免费定制整装家居

一站置家 全程无忧 一省到底
hide.png

当前位置: 首页 > 装修案例效果图 > 金水港湾|现代简约

金水港湾|现代简约 185平 现代简约风格效果图

收藏
案例风格 现代简约 案例户型 四居 案例面积 185平米
楼盘名称 金水港湾 设计师 孙安强 案例类型 改善性住宅

设计理念:设计师整体设计理念:本案以现代简约风格出发,尽可能不用装饰和取消多余的东西,认为任何复杂的设计,没有实用价值的特殊部件及任何装饰都会增加建筑造价,强调形式应更多地效劳于功能。

客厅
第1张
第2张
餐厅
第1张
卧室
第1张
第2张
卫生间
第1张
厨房
第1张
衣帽间
第1张
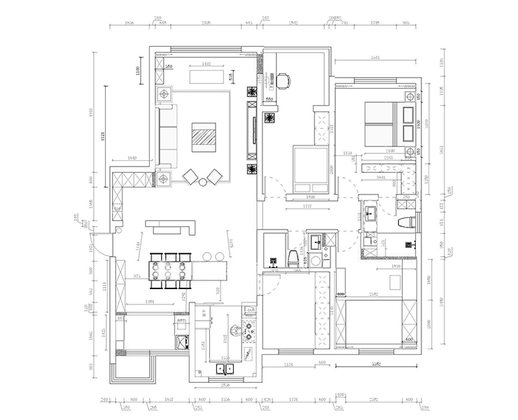
户型图
第1张
金水港湾-185m²-现代简约-客餐厅.jpg 金水港湾-185m²-现代简约-客餐厅2.jpg

客厅说明: 客厅作为待客区域,以简洁明快的设计风格为主调,同时装修较其它空间要更明快光鲜,进深感强。本案户型电视背景墙的设计是整个住宅空间的亮点 ,简单的装饰材料,营造出现代化空间。

金水港湾-185m²-现代简约-客餐厅1.jpg

餐厅说明: 餐厅的环境设计重要的就是就餐环境的营造,实际风格要与整个居室风格一致协调。餐厅中设有岛台,可以点缀餐厅的空间。餐边柜以灰色系为主,使空间更加通透,具备美观的同时,增加大量的储物空间与使用功能。搭配灰色餐椅,不失主题的同时,简约又时尚。

金水港湾-185m²-现代简约-客卧.jpg 金水港湾-185m²-现代简约-主卧.jpg

卧室说明:卧室整体空间以灰色调为基础,顶面运用石膏板床头吊灯和筒灯,从而营造一个现代化的简单,舒适主卧空间。

金水港湾-185m²-现代简约-卫生间.jpg

卫生间说明:实用性强,利用率高,应该合理巧妙的利用每一寸面积。卫生间整体采用整砖铺贴,配合灯光更显宽敞,将空间划分明确,实用性强,简洁明了。相互使用不受影响,整体光源充足。

金水港湾-185m²-现代简约-厨房.jpg

厨房说明:U型橱柜形成U型空间,整体宽敞,布局合理,符合中国人做饭洗切炒的流程,光线充足、通风良好、环境洁净和使用方便是现代化厨房的装修基本要求。

金水港湾-185m²-现代简约-衣帽间.jpg 金水港湾-185m²-现代简约-平面布局.jpg

案例设计师

孙安强

设计师:孙安强

从业时间:10年

设计理念:生活是创意的来源,创意源于文化,创意源于自己

预约设计师

算算你家装修多少钱

报名即享丰厚赠品,享半价装修

免费报价
咨询热线:400-656-9909
20190221103704574636.jpg

精品设计案例

20180612134930523248.jpg 服务号二维码.jpg