立即预约
免费定制整装家居
一站置家 全程无忧 一省到底
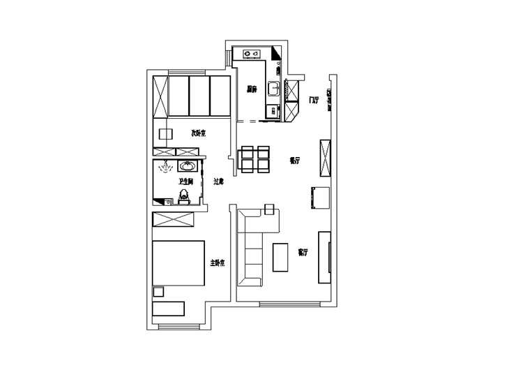
设计理念:本设计案例合理的利用空间,结合实际情况及客户要求,运用色彩清新淡雅的沙发与原木色家具再搭配上装饰品将北欧风格彰显的淋漓尽致。
案例详情
客厅通过挂画的色彩将客厅与玄关连接到一起,相互呼应。让人感觉客厅的空间仿佛延伸出去一样。
以蓝色搭配原木色,创造了干净的休息环境,暖黄色的灯光,让业主在休息时倍感温馨。
精品设计案例
设计说明:
三室两厅一厨两卫,高层整体采用美式风格,色调以深色为主,体现美式的居家感和温馨感。
设计说明:
本案业主为年轻时尚小两口,所以我们考虑到未来想要给未来宝宝一个温馨舒适的一个房间,所以本案整体采用现代风格的手法,运用颜色,来打造整体空间的设计感及时尚感
设计说明:
本案以北欧风格为主题的设计,北欧风格能以现代、简洁、自然的特点俘获人心,所营造出来的生活氛围会让人倍感舒适与自在。
设计说明:
客户是一名成功人士,对于家的执念就是简单干净,客户衣服比较多,所以把每个空间都做了大衣柜,并且融入到设计里