立即预约 立即预约
免费定制整装家居

免费定制整装家居

一站置家 全程无忧 一省到底
hide.png

当前位置: 首页 > 装修案例效果图 > 三盛颐景园|法式

三盛颐景园|法式 145平 其他风格效果图

收藏
案例风格 其他 案例户型 三居 案例面积 145平米
楼盘名称 三盛颐景园 设计师 吴勇 案例类型 改善性住宅

设计理念:设计师整体设计理念:轻法式风格具有厚重的历史文化底蕴,因此其装修具有沉稳、厚重、休闲等特点,传统法式建筑推崇优雅、高贵和浪漫,追求建筑的诗意、诗境,力求在气质上给人深度的感染,风格也偏于庄重大方,如果说传统法式更强调金碧辉煌的贵族范儿,那轻法式的精髓则在于不拘一格,轻法式一方面保留了法式风格材质、色彩的特点,沿袭了传统法式的优雅与高贵气息,同时又摒弃了传统意义上的奢华——过于复杂的肌理和装饰,简化线条,返璞归真。透露着几分灵动清新之感,使家变得浪漫、优雅、舒适、自在。

客厅
第1张
餐厅
第1张
卧室
第1张
第2张
第3张
卫生间
第1张
第2张
厨房
第1张
衣帽间
第1张
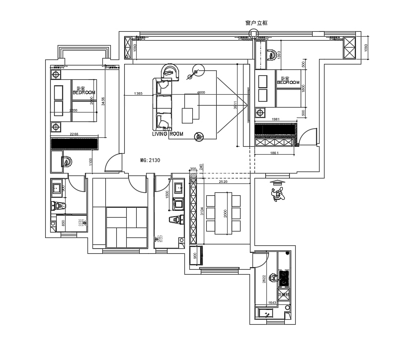
户型图
第1张
三盛颐景园-145㎡-轻法式-客厅.jpg

客厅说明:在一个家庭中,客厅是连接内外和沟通客主情感的主要场所,利用频率较高,所以在空间上也相对比较大。所以采用以白色为主,大肆运用白色,使整个空间典雅、大方。在布局上,将阳台打通后融入客厅,保证了采光和活动空间。大大的落地窗将室外美景尽收眼底,与室内调和的绿色墙面装饰相映成趣,恰到好处。

三盛颐景园-145㎡-轻法式-餐厅.jpg

餐厅说明:在简洁、干净的背景下,餐厅卡座和充满法式风情的餐椅相得益彰,搭配精致吊灯,满眼的精致感,无形之中彰显高品质的生活态度。

三盛颐景园-145㎡-轻法式-次卧室.jpg 三盛颐景园-145㎡-轻法式-主卧室.jpg 三盛颐景园-145㎡-轻法式-儿童房.jpg

卧室说明:主卧用白色为基调,呈现着一片洁净雅致之感。作为业主最常使用的主卧私区,融入了衣帽间、卫浴间的设计,采用一些粉色、和金属元素,营造出更为柔和细腻、温馨浪漫的感觉。

三盛颐景园-145㎡-轻法式-次卫生间.jpg 三盛颐景园-145㎡-轻法式-主卫生间.jpg

卫生间说明:兼顾“颜值”的同时,卫生间采用了干湿分区的设计,一家人生活的时候,互不打扰。无形之中提升了空间的利用率,让日常生活更为便捷、舒适。又充满暖意,卫生间主要选取自由随意的元素,所以在设计中的时候都有很多技巧,简美式卫生间颜色比较简约大方,在低调中又不失时尚的色彩。

三盛颐景园-145㎡-轻法式-厨房.jpg

厨房说明: 采用白色为主,再搭配上法师风格的橱柜,增加艺术氛围,轻法式厨房明亮温馨,既宽敞又不失底蕴,地砖颜色与整体颜色搭配使人眼前舒畅。

三盛颐景园-145㎡-轻法式-衣帽间.jpg 平面图.jpg

案例设计师

吴勇

设计师:吴勇

从业时间:11年

设计理念:用抽象的思维去设计形象的事物

预约设计师

算算你家装修多少钱

报名即享丰厚赠品,品质装修

免费报价
咨询热线:400-656-9909
20190221103704574636.jpg

精品设计案例

20180612134930523248.jpg 服务号二维码.jpg