立即预约 立即预约
免费定制整装家居

免费定制整装家居

一站置家 全程无忧 一省到底
hide.png

当前位置: 首页 > 装修案例效果图 > 首开国风|现代风格

首开国风|现代风格 125平 中式风格效果图

收藏
案例风格 中式 案例户型 二居 案例面积 125平米
楼盘名称 首开国风 设计师 王禹厶 案例类型 儿童房

设计理念:设计理念:现代风格,注重实用性,强调室内空间的充分使用,家具布置与空间密切配合,不添加繁琐多余的附加装饰,家具上线条简单,强调功能型设计,色彩对比强烈。现代风格是所有风格中最不拘一格表现时尚。

客厅
第1张
第2张
第3张
餐厅
第1张
卧室
第1张
第2张
卫生间
第1张
第2张
厨房
第1张
书房
第1张
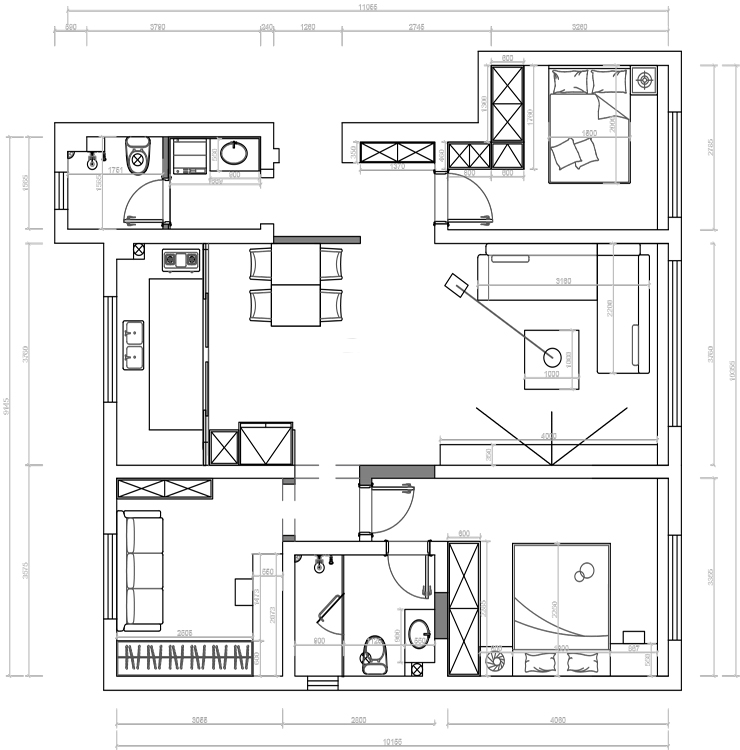
户型图
第1张
首开国风-125平-现代风格-客厅 (2).jpg 首开国风-125平-现代风格-客厅.jpg 首开国风-125平-现代风格-首图.jpg

客厅说明:客厅不仅作为会客起居之用,更是主人品味的体现。用色简洁大气而温馨。客厅与餐厅连贯,视觉上延伸空间。

首开国风-125平-现代风格-餐厅.jpg 首开国风-125平-现代风格-次卧.jpg 首开国风-125平-现代风格-主卧.jpg

卧室说明:卧室采用暖色调,是一种非常舒适放松的色系。这种简单的色彩的卧室,给人的视觉体验也比较好,让家里显得比较明亮,舒适。

首开国风-125平-现代风格-次卫.jpg 首开国风-125平-现代风格-主卫.jpg

卫生间说明:卫生间配合浴屏做干湿分离,显得空间更大气。

首开国风-125平-现代风格-厨房.jpg

厨房说明:U型厨房根据人体力学原理,动线合理便捷,形成高效的黄金三角位,即“洗切炒流水作业”。

首开国风-125平-现代风格-书房.jpg

书房说明:书房的光线明亮。读书办公两不误。书房也是一个不错的休息区,窝在一个角落,隔绝尘嚣,尽享雅致情调,时光的流动仿佛慢了下来。

首开国风-125平-现代风格-户型图.jpg

案例设计师

王禹厶

设计师:王禹厶

从业时间:10年

设计理念:坚持原创,坚持一切美好

预约设计师

算算你家装修多少钱

报名即享丰厚赠品,品质装修

免费报价
咨询热线:400-656-9909
20190221103704574636.jpg

精品设计案例

20180612134930523248.jpg 服务号二维码.jpg