立即预约 立即预约
免费定制整装家居

免费定制整装家居

一站置家 全程无忧 一省到底
hide.png

当前位置: 首页 > 装修案例效果图 > 碧桂园云和天境|现代

碧桂园云和天境|现代 120平 现代简约风格效果图

收藏
案例风格 现代简约 案例户型 三居 案例面积 120平米
楼盘名称 碧桂园云和天境 设计师 李丹 案例类型 改善性住宅

设计理念:设计说明:现代装饰风格,以规则的几何体为元素,让空间更大气,简洁.

客厅
第1张
第2张
餐厅
第1张
卧室
第1张
第2张
卫生间
第1张
第2张
厨房
第1张
过廊
第1张
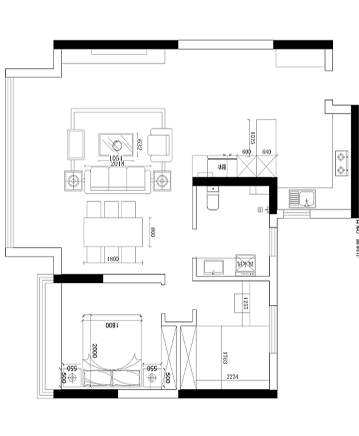
户型图
第1张
碧桂园云和天境-120平-现代风格-客厅.jpg 碧桂园云和天境-120平-现代风格-首图.jpg

客厅说明:整个客厅为暖色调,暖色能带给人一种温馨家的感觉,沙发采用米色,搭配咖色茶几。

碧桂园云和天境-120平-现代风格-餐厅.jpg

餐厅说明:餐桌采用大理石材质,金色的配饰,配上皮质的餐椅,使整个空间更加大气。与客厅相配

碧桂园云和天境-120平-现代风格-卧室(2).jpg 碧桂园云和天境-120平-现代风格-卧室.jpg

卧室设计说明: 卧室是休息的地方,为满足业主能在卧室办公的需求,在窗户旁摆放白色书桌,与衣柜颜色相应。搭配深色软装配饰,使空间不那么单调.

碧桂园云和天境-120平-现代风格-卫生间(2).jpg 碧桂园云和天境-120平-现代风格-卫生间.jpg

卫生间说明:卫生间是人们经常使用的地方,他也是家里每天都能经常用到的空间,根据业主的喜欢,利用浅色系使空间更加大气明亮。

碧桂园云和天境-120平-现代风格-厨房(2).jpg

厨房说明:对于厨房的设计,以实用性为主,采用米色橱柜,满足了客户需求,利用岛台连接客厅,使厨房不那么单调。

碧桂园云和天境-120平-现代风格-玄关.jpg 户型图.jpg

案例设计师

李丹

设计师:李丹

从业时间:5年

设计理念:用我的专业和你的想法,打造专业的家

预约设计师

算算你家装修多少钱

报名即享丰厚赠品,享半价装修

免费报价
咨询热线:400-656-9909
20190221103704574636.jpg

精品设计案例

20180612134930523248.jpg 服务号二维码.jpg