立即预约 立即预约
免费定制整装家居

免费定制整装家居

一站置家 全程无忧 一省到底
hide.png

当前位置: 首页 > 装修案例效果图 > 时代之城|现代风格

时代之城|现代风格 140平 现代简约风格效果图

收藏
案例风格 现代简约 案例户型 三居 案例面积 140平米
楼盘名称 时代之城 设计师 姜宇 案例类型 儿童房

设计理念:设计师整体设计理念:本案设计整体以实用,线条,暖色基调为主,让业主在空间内舒适的生活。

客厅
第1张
第2张
第3张
卧室
第1张
第2张
卫生间
第1张
第2张
厨房
第1张
衣帽间
第1张
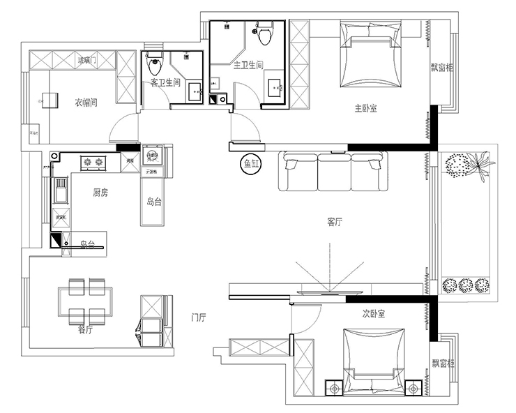
户型图
第1张
华润时代之城-140平-现代风格-客厅1.jpg 华润时代之城-140平-现代风格-客厅.jpg 华润时代之城-140平-现代风格-客厅2.jpg

客厅说明:客厅整体色调以暖灰色为主,采用无主灯的设计,让整个空间更加宽敞舒适。

华润时代之城-140平-现代风格-主卧室.jpg 华润时代之城-140平-现代风格-次卧室.jpg

卧室说明: 卧室整体以温馨舒适为主,床头的设计让空间有层次感

华润时代之城-140平-现代风格-主卫.jpg 华润时代之城-140平-现代风格-客卫.jpg

卫生间说明:卫生间采用暖灰色为主,采用大板砖进行铺贴,从视觉感让原本狭小的空间增大。

华润时代之城-140平-现代风格-餐厅-厨房.jpg

厨房说明:本空间设计是隐藏式拉门设计,这样设计及保留对传统厨房油烟问题的隔绝,又保留开放式厨房的通透性,与客厅完美的连接一起。

华润时代之城-140平-现代风格-衣帽间.jpg 华润时代之城-140平-现代风格-平面方案.jpg

案例设计师

姜宇

设计师:姜宇

从业时间:18年

设计理念:适合人居舒适的环境设计才是好设计

预约设计师

算算你家装修多少钱

报名即享丰厚赠品,享半价装修

免费报价
咨询热线:400-656-9909
20190221103704574636.jpg

精品设计案例

20180612134930523248.jpg 服务号二维码.jpg