立即预约 立即预约
免费定制整装家居

免费定制整装家居

一站置家 全程无忧 一省到底
hide.png

当前位置: 首页 > 装修案例效果图 > 旭辉东辰府|法式中古风

旭辉东辰府|法式中古风 132平 其他风格效果图

收藏
案例风格 其他 案例户型 三居 案例面积 132平米
楼盘名称 旭辉东辰府 设计师 王杰 案例类型 改善性住宅

设计理念:设计师整体设计理念: 整体考虑的是软装配搭硬装的结合,采用了大胆的墨绿色,在喧嚣的城市中有一种亲近大自然的感觉。

客厅
第1张
第2张
第3张
第4张
餐厅
第1张
卧室
第1张
第2张
卫生间
第1张
第2张
第3张
厨房
第1张
书房
第1张
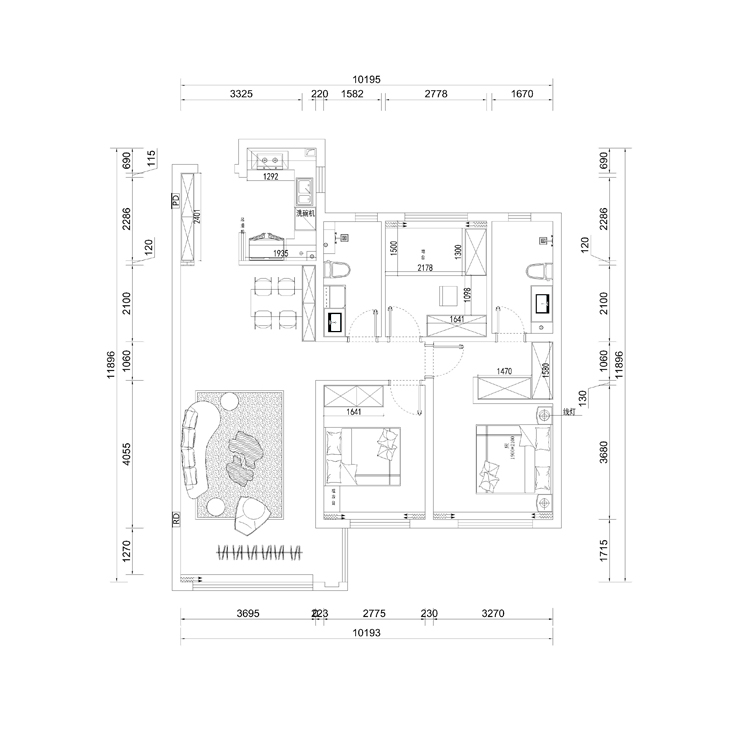
户型图
第1张
王杰设计丨旭辉东宸府-改3-客餐厅 1-20230606-122013.jpg 王杰设计丨旭辉东宸府-改3-客餐厅 10-20230606-122013.jpg 王杰设计丨旭辉东宸府-改3-客餐厅 0-20230606-122014.jpg 王杰设计丨旭辉东宸府-改3-客餐厅 11-20230606-122013.jpg

客厅说明: 整体客厅的设计焦点集中在了棚顶及色彩的配搭,整体效果凸显自然美感。

王杰设计丨旭辉东宸府-改3-客餐厅 9-20230606-122013.jpg 王杰设计丨旭辉东宸府-改3-次卧 2-20230606-122013.jpg 王杰设计丨旭辉东宸府-改3-主卧 3-20230606-122013.jpg

卧室说明: 主卧室不仅是睡眠、休息的地方,对于视觉感官更加充实了风格的特点,背景墙用了简单的花线做了一个上下分色的背景墙,风格更加贴近

王杰设计丨旭辉东宸府-改3-次卫 5-20230606-122013.jpg 王杰设计丨旭辉东宸府-改3-主卫 4-20230606-122013.jpg 王杰设计丨旭辉东宸府-改3-干区 6-20230606-122013.jpg

卫生间说明: 卫生间做了分区干湿分离设计,对于手盆和洗衣机整体考虑放在干区是想干燥一些,远离湿区的潮湿。上下分体版设计的瓷砖,色彩多虑。

王杰设计丨旭辉东宸府-改3-厨房 8-20230606-122013.jpg

厨房说明:厨房AB版的瓷砖分配,配搭灰色的橱柜,白色的吊顶,干净大气。

王杰设计丨旭辉东宸府-改3-书房 7-20230606-122014.jpg 华润新凯旋-119平米-现代奶油-布局图.jpg

案例设计师

王杰

设计师:王杰

从业时间:7年

设计理念:因生活而设计,因设计而完美。

预约设计师

算算你家装修多少钱

报名即享丰厚赠品,品质装修

免费报价
咨询热线:400-656-9909
20190221103704574636.jpg

精品设计案例

20180612134930523248.jpg 服务号二维码.jpg