立即预约 立即预约
免费定制整装家居

免费定制整装家居

一站置家 全程无忧 一省到底
hide.png

当前位置: 首页 > 装修案例效果图 > 金地江山风华|现代轻奢

金地江山风华|现代轻奢 236平 轻奢风格效果图

收藏
案例风格 轻奢 案例户型 三居 案例面积 236平米
楼盘名称 金地江山风华 设计师 白涵琦 案例类型 改善性住宅

设计理念:设计师整体设计理念:现代轻奢装饰风格的主要特征之一是装饰设计以高品质和简约为基础。设计简洁大方、时尚、前卫、优雅。整体色调以暖色为主,同色系的手法,局部点缀色,使整个空间优雅、静谧。现代风格更注重生活质量,为业主营造一个完全放松的家居环境,所以上面的装饰还是选择一些柔软的装饰,让房间更温暖。

客厅
第1张
第2张
第3张
餐厅
第1张
卧室
第1张
第2张
第3张
卫生间
第1张
第2张
厨房
第1张
第2张
书房
第1张
门厅
第1张
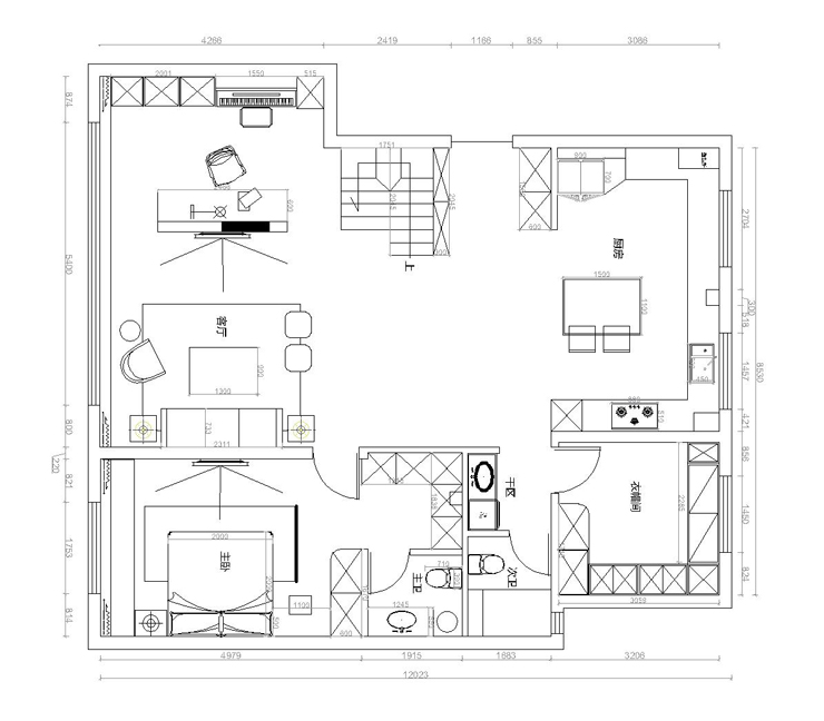
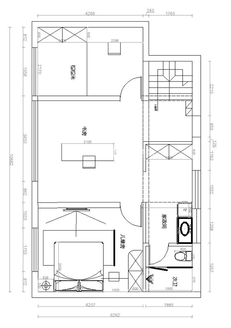
户型图
第1张
第2张
金地江山风华-236平-现代轻奢-客厅3.jpg 金地江山风华-236平-现代轻奢-客厅2.jpg 金地江山风华-236平-现代轻奢-客厅首图.jpg

客厅说明: 客厅不仅作为会客起居之用,更是主人生活方式跟品味的展示。以暖色调为主,用色简洁大气而温馨,搭配硬朗的线条灯使整个空间更有质感。客厅与餐厅通透连贯,视觉上延伸空间。

金地江山风华-236平-现代轻奢-厨房2.jpg 金地江山风华-236平-现代轻奢-二楼儿童房.jpg 金地江山风华-236平-现代轻奢-二楼榻榻米.jpg 金地江山风华-236平-现代轻奢-主卧.jpg 金地江山风华-236平-现代轻奢-卫生间.jpg 金地江山风华-236平-现代轻奢-主卫.jpg

卫生间说明:卫生间采用暖色调,配合浴屏分割干湿区,让卫生间更大气,整体的色调给人一种温馨的感觉。

金地江山风华-.jpg 金地江山风华-236平-现代轻奢-厨房.jpg

厨房说明: 厨房采用开放式U型厨房。餐导一体,空间整洁大方。视觉上产生延伸效果。

金地江山风华-236平-现代轻奢-二楼书房.jpg

书房说明:二楼开放书房,空间光线明亮,视野宽广,增加阅读的欲望和心情。

金地江山风华-236平-现代轻奢-入户.jpg 金地江山风华平面图1F.jpg 金地江山风华平面图2F.jpg

案例设计师

白涵琦

设计师:白涵琦

从业时间:10年

设计理念:设计实现客户家居梦想

预约设计师

算算你家装修多少钱

报名即享丰厚赠品,品质装修

免费报价
咨询热线:400-656-9909
20190221103704574636.jpg

精品设计案例

20180612134930523248.jpg 服务号二维码.jpg